(旧)宮崎県住宅供給公社施工の建物です リフォーム工事済 耐震基準適合証明書発行可能です
戸建住宅
- メールで問い合わせる(無料)
- ※空室状況、物件見学、内覧予約など
- 有限会社 住喜ハウジング
- お急ぎの方はお電話で
0985-39-8074 - 物件番号 │ 0945010100
-
地図
-
ストリートビュー
-
動画
-
VR
※写真と現況が異なる場合は現況優先とします。
| 所在地 | 宮崎市生目台東4丁目19-6 | ||
|---|---|---|---|
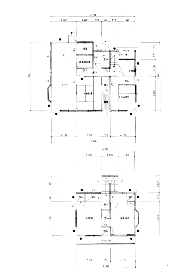
| 間取り/階数 | 4LDK / 地上2階 | ||
| 総戸数 | 1 | 事務所戸数 | |
| 土地面積 | 252.32m²(76.32坪) | 建物延面積 | 101.07m²(30.57坪) |
| 私道面積 | 1戸の専有面積 | ||
| 築年月 | H3.12 | 構造/屋根 | 木造 / 瓦葺き |
| 用途地域 | 第1種低層住居専用地域 | ||
| 地目 | 宅地 | 都市計画 | 市街化 |
| 土地権利 | 所有権 | セットバック | 無 |
| 容積率 | 60% | 建ぺい率 | 40% |
| 駅 | |||
| バス停 | 生目台センター前(徒歩5分) | ||
| 著名施設 | |||
| スーパー | コンビニ | ||
| ドラッグストア (薬局) |
総合病院 | ||
| 公園 | 銀行 | ||
| 病院(内科) | |||
| 校区 | 宮崎市立生目台東小学校(310m) / 宮崎市立生目台中学校(220m) | 取引態様 | 仲介 |
| 駐車場 | 2台付 | 仲介手数料 | |
| 接道1(向/幅) | 北 | 接道2(向/幅) | |
| 引渡期間/現況 | 即時 / 空き | ||
| 設備 | 水道(公営)ガス(都市)排水(下水)バス(専用)トイレ(専用)バス・トイレ別コンロ種別(ガス)給湯追焚機能シャワー付洗面化粧台洗濯機置き場(有)専用庭フローリングTVドアホン温水洗浄便座カウンターキッチン洗面所独立シューズボックス照明器具付耐震基準適合証明書瑕疵保証(不動産会社独自)(有)建築士等の建物検査報告書 インターホン上水道 | ||
| 投資金額 | 満室時 | ||
| 現状 | |||
| 一般備考 | 白あり予防工事・外壁塗装工事・建物内部リフォーム工事済で即入居出来ます 各部屋に照明新調してます 南側敷地広く家庭菜園等楽しめます 広い生目台地区公園も近く散歩やランニングで健康的な生活がおくられます 建物現況調査(インスペクション)済です |
||
| PRワード | 高台4LDKリフォーム工事済即入居可 | ||
| 物件更新日 | 2026年1月20日 | ||
- 宮崎の売買情報をシェアしよう!
- スマートフォンで物件情報を見る
- コードを読み取ることで、スマートフォンでもご覧頂けます。
- 宅地建物取引業 / 宮崎県知事(3)4425
- 有限会社 住喜ハウジング
- http://sumihou777.com/
- 〒8800121 宮崎市大字島之内7184-1
- 電話番号 : 0985-39-8074 FAX番号 : 0985-39-8094
- メールで問い合わせる(無料)
- ※空室状況、物件見学、内覧予約など
- 有限会社 住喜ハウジング
- お急ぎの方はお電話で
0985-39-8074 - 物件番号 │ 0945010100




























