築浅の4LDKオール電化戸建 駐車場3台以上駐車可能
戸建住宅
- メールで問い合わせる(無料)
- ※空室状況、物件見学、内覧予約など
- 株式会社合格不動産
- お急ぎの方はお電話で
0120-844-123 - 物件番号 │ 1605010034
-
地図
-
ストリートビュー
-
動画
-
VR
※写真と現況が異なる場合は現況優先とします。
- オススメポイント
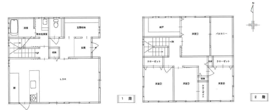
- ゆったりめの居室空間、更に人工芝使用のお庭やウッドデッキがあり、室外の楽しみが広がります。室内は、納戸もついていますのでたくさん収納出来ます。また、システムキッチン、食器洗浄機、浴室乾燥・暖房機等の設備も整っております。キッチンはカウンターキッチンですので、ご家族とコミュニケーションがとりやすくなっております。駐車場もカーポート部分は2台ほど駐車ができ、全体的には4台ほど駐車可能です。是非その目でお確かめください。
※告知事項がございます
| 所在地 | 宮崎市高岡町下倉永字祇園1200番330 | ||
|---|---|---|---|
| 間取り/階数 | 4LDK / 地上2階 | ||
| 総戸数 | 事務所戸数 | ||
| 土地面積 | 308.63m²(93.36坪) | 建物延面積 | 117.99m²(35.69坪) |
| 私道面積 | 1戸の専有面積 | ||
| 築年月 | R5.3 | 構造/屋根 | 木造 / スレート葺き |
| 用途地域 | 第1種中高層住居専用地域 | ||
| 地目 | 宅地 | 都市計画 | 市街化 |
| 土地権利 | 所有権 | セットバック | |
| 容積率 | 150% | 建ぺい率 | 50% |
| 駅 | |||
| バス停 | 祇園台南(徒歩3分) | ||
| 著名施設 | |||
| スーパー | 4800 m (フーデリー高岡店) | コンビニ | 2090 m ( ローソン高岡花見橋店) |
| ドラッグストア (薬局) |
総合病院 | ||
| 公園 | 80 m (衹園台第3児童公園) | 銀行 | |
| 病院(内科) | |||
| 校区 | 宮崎市立穆佐小学校(700m) / 宮崎市立高岡中学校(5920m) | 取引態様 | 専属専任 |
| 駐車場 | 3台付 | 仲介手数料 | |
| 接道1(向/幅) | 東 / 6.0m | 接道2(向/幅) | |
| 引渡期間/現況 | 即時 / 空き | ||
| 設備 | 水道(公営)ガス(プロパン)排水(下水)バス(専用)トイレ(専用)バス・トイレ別コンロ種別(IH)システムキッチン給湯床下収納洗濯機置き場(室内)専用庭バルコニーフローリングTVドアホン温水洗浄便座オール電化カウンターキッチン浴室乾燥機食器洗い乾燥機全居室収納クローゼットオートバス インターホンカーポート(2台)洗面化粧台浴室暖房シューズクローク | ||
| 投資金額 | 満室時 | ||
| 現状 | |||
| 一般備考 | 土地面積:308.63㎡(93.36坪) 建物面積:117.99㎡(35.69坪) 校区:宮崎市立穆佐小学校(徒歩9分)・高岡中学校(徒歩1時間14分) ※敷地内に電柱あり 年2,000円程度の敷地使用料を受領 ※告知事項あり |
||
| PRワード | 築浅戸建て駐車3台以上可能納戸2面採光ウッドデッキ | ||
| 物件更新日 | 2025年12月26日 | ||
- 宮崎の売買情報をシェアしよう!
- スマートフォンで物件情報を見る
- コードを読み取ることで、スマートフォンでもご覧頂けます。
- 宅地建物取引業 / 宮崎県知事(3)4630
- 株式会社合格不動産
- https://gokaku-fudosan.co.jp/
- 〒8800024 宮崎市祇園4丁目74番地1
- 電話番号 : 0985-61-5997 FAX番号 : 0985-61-5996
- メールで問い合わせる(無料)
- ※空室状況、物件見学、内覧予約など
- 株式会社合格不動産
- お急ぎの方はお電話で
0120-844-123 - 物件番号 │ 1605010034




























