閑静な住宅地で、買い物近く便利な場所です。
戸建住宅
- メールで問い合わせる(無料)
- ※空室状況、物件見学、内覧予約など
- 株式会社クラウドホーム
- お急ぎの方はお電話で
0985-82-7355 - 物件番号 │ 1085010116
-
地図
-
ストリートビュー
-
動画
-
VR
※写真と現況が異なる場合は現況優先とします。
- オススメポイント
- 閑静な住宅地で、買い物近く便利な場所です。
| 所在地 | 鹿児島県姶良市西餅田3719-44 | ||
|---|---|---|---|
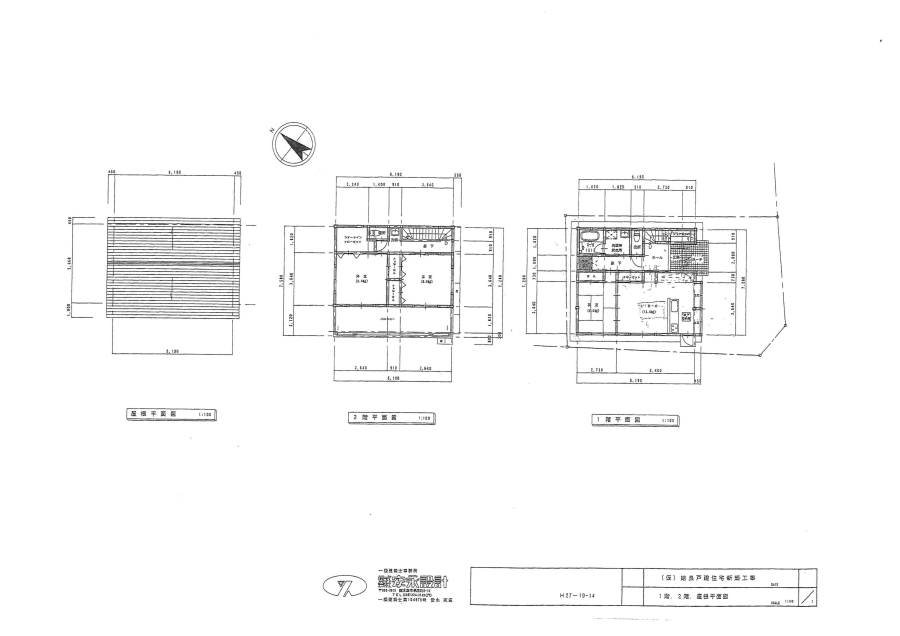
| 間取り/階数 | 3LDK(1F 和6 LDK13 2F 洋8 洋8) / 地上2階 | ||
| 総戸数 | 事務所戸数 | ||
| 土地面積 | 133.09m²(40.25坪) | 建物延面積 | 102.51m²(31坪) |
| 私道面積 | 1戸の専有面積 | ||
| 築年月 | H28.4 | 構造/屋根 | 木造 / スレート葺き |
| 用途地域 | 第1種中高層住居専用地域 | ||
| 地目 | 宅地 | 都市計画 | 未線引 |
| 土地権利 | 所有権 | セットバック | |
| 容積率 | 200% | 建ぺい率 | 60% |
| 駅 | 姶良駅(徒歩6分) | ||
| バス停 | |||
| 著名施設 | 姶良市役所(道路距離1600m) | ||
| スーパー | コンビニ | ||
| ドラッグストア (薬局) |
総合病院 | ||
| 公園 | 銀行 | ||
| 病院(内科) | |||
| 校区 | 取引態様 | 仲介 | |
| 駐車場 | 2台付 | 仲介手数料 | |
| 接道1(向/幅) | 東 / 6.0m | 接道2(向/幅) | 南 / 18.0m |
| 引渡期間/現況 | 相談 / 居住中 | ||
| 設備 | 水道(公営)ガス(プロパン)排水(浄化槽)バス(専用)トイレ(専用)バス・トイレ別コンロ種別(ガス)コンロ口数(三口)給湯シャワー付洗面化粧台冷暖房(エアコン)洗濯機置き場(室内)フローリングカウンターキッチン洗面所独立全居室収納 インターホン洗面化粧台トイレ2ヵ所上水道 | ||
| 投資金額 | 満室時 | ||
| 現状 | |||
| 一般備考 | 閑静な住宅地で、買い物近く便利な場所です。 | ||
| PRワード | 買い物近くイオン近く姶良市役所 | ||
| 物件更新日 | 2025年11月29日 | ||
- 宮崎の売買情報をシェアしよう!
- スマートフォンで物件情報を見る
- コードを読み取ることで、スマートフォンでもご覧頂けます。
- 宅地建物取引業 / 宮崎県知事(2)4894
- 株式会社クラウドホーム
- https://cloud-home.jp
- 〒8800021 宮崎市清水3丁目4番17-2アリシアイン 清水301号
- 電話番号 : 0985-82-7355 FAX番号 : 0985-82-7356
- メールで問い合わせる(無料)
- ※空室状況、物件見学、内覧予約など
- 株式会社クラウドホーム
- お急ぎの方はお電話で
0985-82-7355 - 物件番号 │ 1085010116










