ハウスメーカー造 築浅住宅
戸建住宅
- メールで問い合わせる(無料)
- ※空室状況、物件見学、内覧予約など
- 株式会社とおりの不動産屋さん
- お急ぎの方はお電話で
0985-45-7508 - 物件番号 │ 1855010070
※写真と現況が異なる場合は現況優先とします。
- オススメポイント
- 価格変更
3,620万円→3,380万円
ハウスメーカー造の築浅住宅のご紹介です。
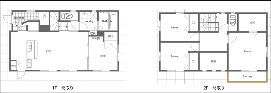
南向きで吹き抜けのあるリビングは開放的で、隣にはお子様世帯には嬉しい和室があります。
2階の廊下も光が差し込みとても明るく、主寝室と子供部屋が2部屋あります。
室内はとても綺麗に管理されています。
居住中のため、ご内覧希望の場合は事前にご予約が必要です。
| 所在地 | 宮崎市下北方町源野5634-12 | ||
|---|---|---|---|
| 間取り/階数 | 4LDK / 地上2階 | ||
| 総戸数 | 1 | 事務所戸数 | |
| 土地面積 | 179.04m²(54.15坪) | 建物延面積 | 105.28m²(31.84坪) |
| 私道面積 | 1戸の専有面積 | ||
| 築年月 | H30.8 | 構造/屋根 | 軽量鉄骨造 / スレート葺き |
| 用途地域 | 第1種低層住居専用地域 | ||
| 地目 | 宅地 | 都市計画 | 市街化 |
| 土地権利 | 所有権 | セットバック | 無 |
| 容積率 | 60% | 建ぺい率 | 40% |
| 駅 | JR 宮崎神宮駅(徒歩35分) | ||
| バス停 | 平和台(徒歩8分) | ||
| 著名施設 | |||
| スーパー | コンビニ | ||
| ドラッグストア (薬局) |
総合病院 | ||
| 公園 | 890 m (下北方町越ケ迫6146) | 銀行 | |
| 病院(内科) | |||
| 校区 | 宮崎市立大宮小学校(2020m) / 宮崎市立大宮中学校(1230m) | 取引態様 | 一般媒介 |
| 駐車場 | 3台付 | 仲介手数料 | |
| 接道1(向/幅) | 西 / 5.0m | 接道2(向/幅) | 南 / 4.0m |
| 引渡期間/現況 | R8年1月 / 居住中 | ||
| 設備 | 水道(公営)排水(下水)バス(専用)トイレ(専用)バス・トイレ別シャワーコンロ種別(IH)コンロ口数(三口)システムキッチン給湯追焚機能シャワー付洗面化粧台ウォークインクローゼット洗濯機置き場(室内)フローリングTVドアホン温水洗浄便座オール電化カウンターキッチン浴室乾燥機洗面所独立食器洗い乾燥機クローゼットシューズインクローゼット太陽光発電システムオートバスBELS/省エネ基準適合認定建築物 | ||
| 投資金額 | 満室時 | ||
| 現状 | |||
| 一般備考 | 価格変更 3,620万円→3,380万円 |
||
| PRワード | 下北方町大宮小学校区大宮中学校大和ハウス築浅 | ||
| 物件更新日 | 2025年9月29日 | ||
- 宮崎の売買情報をシェアしよう!
- スマートフォンで物件情報を見る
- コードを読み取ることで、スマートフォンでもご覧頂けます。
- 宅地建物取引業 / 宮崎県知事(2)4915
- 株式会社とおりの不動産屋さん
- https://www.to-ri.net
- 〒8800014 宮崎市鶴島1丁目9-5
- 電話番号 : 0985-45-7508 FAX番号 : 050-3457-7778
- メールで問い合わせる(無料)
- ※空室状況、物件見学、内覧予約など
- 株式会社とおりの不動産屋さん
- お急ぎの方はお電話で
0985-45-7508 - 物件番号 │ 1855010070
















