戸建住宅
- メールで問い合わせる(無料)
- ※空室状況、物件見学、内覧予約など
- 株式会社とおりの不動産屋さん
- お急ぎの方はお電話で
0985-45-7508 - 物件番号 │ 1855010090
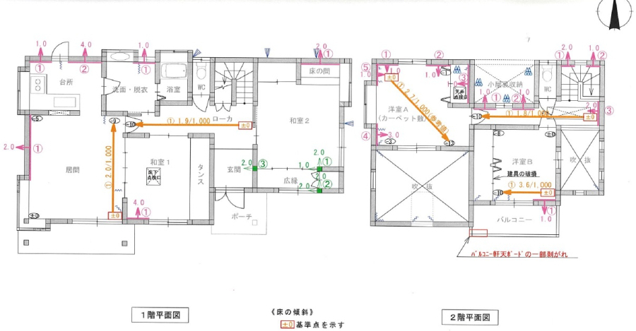
※写真と現況が異なる場合は現況優先とします。
| 所在地 | 宮崎市大塚町八所3642-1 | ||
|---|---|---|---|
| 間取り/階数 | 4LDK / 地上2階 | ||
| 総戸数 | 事務所戸数 | ||
| 土地面積 | 282.06m²(85.32坪) | 建物延面積 | 119.72m²(36.21坪) |
| 私道面積 | 1戸の専有面積 | ||
| 築年月 | S62.11 | 構造/屋根 | 木造 / |
| 用途地域 | 第1種低層住居専用地域 | ||
| 地目 | 宅地 | 都市計画 | 市街化 |
| 土地権利 | 所有権 | セットバック | |
| 容積率 | 80% | 建ぺい率 | 50% |
| 駅 | JR 南宮崎駅(徒歩55分) | ||
| バス停 | |||
| 著名施設 | |||
| スーパー | 450 m (旬感マーケット 大塚店) | コンビニ | 370 m (セブン-イレブン 宮崎大塚中央通店) |
| ドラッグストア (薬局) |
470 m (ドラッグストア マツモトキヨシ 大塚店) | 総合病院 | |
| 公園 | 470 m (大塚さくら公園) | 銀行 | 860 m (宮崎銀行 大塚中央支店) |
| 病院(内科) | |||
| 校区 | 宮崎市立大塚小学校(710m) / 宮崎市立大塚中学校(930m) | 取引態様 | 仲介 |
| 駐車場 | 2台付 | 仲介手数料 | |
| 接道1(向/幅) | 接道2(向/幅) | ||
| 引渡期間/現況 | 相談 / 空き | ||
| 設備 | 水道(公営)排水(下水)バス(専用)トイレ(専用)バス・トイレ別洗面所独立 | ||
| 投資金額 | 満室時 | ||
| 現状 | |||
| 一般備考 | 価格更新1,980万→1,790万 | ||
| PRワード | |||
| 物件更新日 | 2026年2月4日 | ||
- 宮崎の売買情報をシェアしよう!
- スマートフォンで物件情報を見る
- コードを読み取ることで、スマートフォンでもご覧頂けます。
- 宅地建物取引業 / 宮崎県知事(2)4915
- 株式会社とおりの不動産屋さん
- https://www.to-ri.net
- 〒8800014 宮崎市鶴島1丁目9-5
- 電話番号 : 0985-45-7508 FAX番号 : 050-3457-7778
- メールで問い合わせる(無料)
- ※空室状況、物件見学、内覧予約など
- 株式会社とおりの不動産屋さん
- お急ぎの方はお電話で
0985-45-7508 - 物件番号 │ 1855010090






















