〈エステートウエダ〉永楽町オール電化4LDK新築住宅(2488万円・2588万円)
戸建住宅
- メールで問い合わせる(無料)
- ※空室状況、物件見学、内覧予約など
- エステートウエダ
- お急ぎの方はお電話で
090-8762-3435 - 物件番号 │ 2235010175
-
地図
-
ストリートビュー
-
動画
-
VR
※写真と現況が異なる場合は現況優先とします。
- オススメポイント
- ご成約のお客様には30万円相当の家電プレゼント(3月末までのお引渡し限定)
●当物件は【仲介手数料無料】でご案内いたします。当物件以外の新築物件も全て無料ですので気になる物件はご相談ください。(通常仲介手数料は「価格x3%+6万(別途消費税)」)ですので諸経費の削減につながります。
●「仲介手数料不要」ですがご安心ください!「1級建築士・宅建士・ファイナンシャルプランナー・行政書士」の担当者がご成約まで安心のサポート!
◎当社は「年中無休・夜間連絡問合せ等が可能」なので、お仕事が忙しい方でも売買手続き等が無理なく進められます!お気軽にご相談ください。
(共通設備・仕様)
TVモニター付インターホン/全居室複層ガラス仕様/暖房乾燥機付ユニットバス/対面式システムキッチン/シャワードレッサー/多機能トイレ
| 所在地 | 宮崎市永楽町84〈エステートウエダ〉永楽町第4(全2棟)1号棟 | ||
|---|---|---|---|
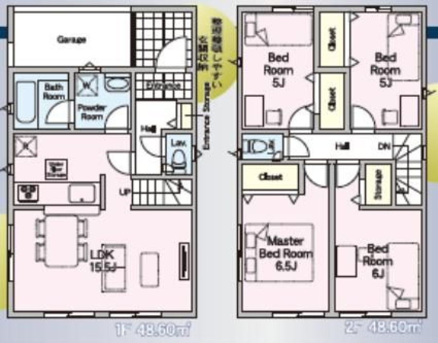
| 間取り/階数 | 4LDK((1F)LDK15.5帖 (2F)洋5帖・洋5帖・洋6帖・洋6.5帖) / 地上2階 | ||
| 総戸数 | 事務所戸数 | ||
| 土地面積 | 122.2m²(36.96坪) | 建物延面積 | 97.2m²(29.4坪) |
| 私道面積 | 1戸の専有面積 | ||
| 築年月 | R7.12 | 構造/屋根 | 木造 / コロニアル葺き |
| 用途地域 | 第2種住居地域 | ||
| 地目 | 宅地 | 都市計画 | 市街化 |
| 土地権利 | 所有権 | セットバック | |
| 容積率 | 200% | 建ぺい率 | 60% |
| 駅 | JR 宮崎駅(徒歩13分) | ||
| バス停 | 宮中前(徒歩3分) | ||
| 著名施設 | |||
| スーパー | 510 m (ナガノヤ 瀬頭店) | コンビニ | 150 m (ローソン 宮崎永楽町店) |
| ドラッグストア (薬局) |
総合病院 | ||
| 公園 | 350 m (後田川緑道) | 銀行 | 300 m (宮崎太陽銀行 堀川町支店) |
| 病院(内科) | |||
| 校区 | 宮崎市立宮崎小学校(686m) / 宮崎市立宮崎中学校(167m) | 取引態様 | 仲介 |
| 駐車場 | 2台付 | 仲介手数料 | |
| 接道1(向/幅) | 北 / 4.9m | 接道2(向/幅) | |
| 引渡期間/現況 | 即時 / 空き | ||
| 設備 | 水道(公営)排水(下水)バス(専用)トイレ(専用)バス・トイレ別コンロ種別(IH)コンロ口数(三口)システムキッチンシャワー付洗面化粧台床下収納洗濯機置き場(室内)バルコニーTVドアホン温水洗浄便座オール電化カウンターキッチン浴室乾燥機耐震構造制震構造防犯カメラ全居室収納シューズボックスオートバス設計住宅性能評価書フラット35・S適合証明書建設住宅性能評価書(新築時)新築時・増改築時の設計図書 トイレ2ヵ所エコキュート | ||
| 投資金額 | 満室時 | ||
| 現状 | |||
| 一般備考 | ご成約のお客様には30万円相当の家電プレゼント(3月末までのお引渡し限定) ●当物件は【仲介手数料無料】でご案内いたします。当物件以外の新築物件も全て無料ですので気になる物件はご相談ください。(通常仲介手数料は「価格x3%+6万(別途消費税)」)ですので諸経費の削減につながります。 ●「1級建築士・宅建士・ファイナンシャルプランナー・行政書士」の担当者がご成約まで安心のサポート! |
||
| PRワード | |||
| 物件更新日 | 2026年3月10日 | ||
- 宮崎の売買情報をシェアしよう!
- スマートフォンで物件情報を見る
- コードを読み取ることで、スマートフォンでもご覧頂けます。
- 宅地建物取引業 / 宮崎県知事(1)5093
- エステートウエダ
- https://estateueda.com/
- 〒8800123 宮崎市大字芳士800-41
- 電話番号 : 090-8762-3435 FAX番号 : 0985-71-4059
- メールで問い合わせる(無料)
- ※空室状況、物件見学、内覧予約など
- エステートウエダ
- お急ぎの方はお電話で
090-8762-3435 - 物件番号 │ 2235010175
・不動産の売却や購入の相談はお気軽にお問合せください。
・不動産の価格査定はご事情に関わらず全て無料です。
・ホームページに掲載がない場合でも物件探しからアドバイスまで「一級建築士」「マンション管理士」の有資格者がご対応いたします。
・農地転用や市街化調整区域での建築等のご相談についても「行政書士」の有資格者が無料でご対応いたします。
















