〈エステートウエダ〉中西町4LDK新築住宅(スーパー・コンビニ等徒歩圏内)
戸建住宅
- メールで問い合わせる(無料)
- ※空室状況、物件見学、内覧予約など
- エステートウエダ
- お急ぎの方はお電話で
090-8762-3435 - 物件番号 │ 2235010197
-
地図
-
ストリートビュー
-
動画
-
VR
※写真と現況が異なる場合は現況優先とします。
- オススメポイント
- ご成約のお客様には10万円相当の家電等プレゼント!
●当物件は【仲介手数料無料】でご案内いたします。当物件以外の新築物件も全て無料ですので気になる物件はご相談ください。(通常仲介手数料は「価格x3%+6万(別途消費税)」)ですので諸経費の削減につながります。
●「仲介手数料不要」ですがご安心ください!「1級建築士・宅建士・ファイナンシャルプランナー・行政書士」の担当者がご成約まで安心のサポート!
◎当社は「年中無休・夜間連絡問合せ等が可能」なので、お仕事が忙しい方でも売買手続き等が無理なく進められます!お気軽にご相談ください。
| 所在地 | 宮崎市中西町181-3〈エステートウエダ〉フォレクス中西町3 | ||
|---|---|---|---|
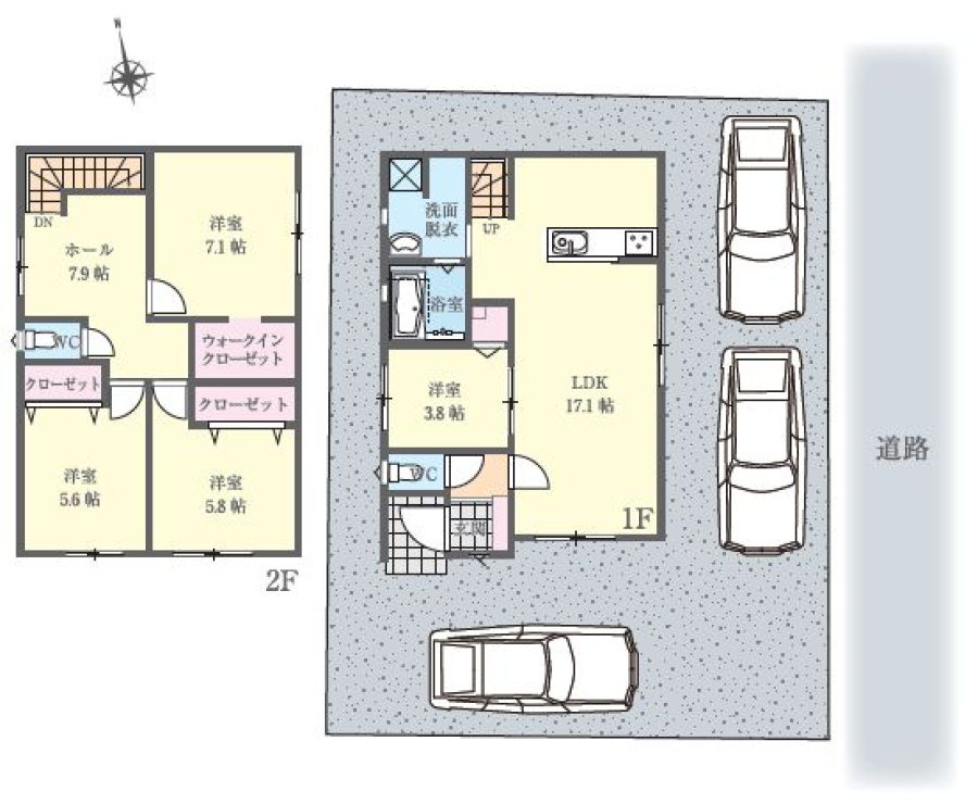
| 間取り/階数 | 4LDK((1F)LDK17.1帖・洋3.8帖 (2F)洋7.1帖・洋5.8帖・洋5.6帖) / 地上2階 | ||
| 総戸数 | 事務所戸数 | ||
| 土地面積 | 145.24m²(43.93坪) | 建物延面積 | 98.87m²(29.9坪) |
| 私道面積 | 1戸の専有面積 | ||
| 築年月 | R7.9 | 構造/屋根 | 木造 / 鋼板葺き |
| 用途地域 | 第1種低層住居専用地域 | ||
| 地目 | 宅地 | 都市計画 | 市街化 |
| 土地権利 | 所有権 | セットバック | |
| 容積率 | 100% | 建ぺい率 | 60% |
| 駅 | JR 宮崎駅(徒歩26分) | ||
| バス停 | 一宮(徒歩6分) | ||
| 著名施設 | |||
| スーパー | 890 m (ショッピングのだ 出来島店) | コンビニ | 450 m (ファミリーマート 日ノ出町店) |
| ドラッグストア (薬局) |
710 m (ドラッグストアコスモス 曽師店) | 総合病院 | 360 m (慈英病院) |
| 公園 | 250 m (中西緑地広場) | 銀行 | 520 m (宮崎銀行 一の宮支店) |
| 病院(内科) | |||
| 校区 | 宮崎市立潮見小学校(860m) / 宮崎市立宮崎中学校(1230m) | 取引態様 | 仲介 |
| 駐車場 | 3台付 | 仲介手数料 | |
| 接道1(向/幅) | 東 / 4.9m | 接道2(向/幅) | 西 |
| 引渡期間/現況 | 即時 / 空き | ||
| 設備 | 水道(公営)ガス(プロパン)排水(下水)バス(専用)トイレ(専用)バス・トイレ別コンロ種別(ガス)コンロ口数(三口)システムキッチンシャワー付洗面化粧台床下収納洗濯機置き場(室内)TVドアホン温水洗浄便座カウンターキッチン浴室乾燥機洗面所独立全居室収納シューズボックスオートバス トイレ2ヵ所上水道 | ||
| 投資金額 | 満室時 | ||
| 現状 | |||
| 一般備考 | ご成約のお客様には10万円相当の家電等プレゼント! ●当物件は【仲介手数料無料】でご案内いたします。当物件以外の新築物件も全て無料ですので気になる物件はご相談ください。(通常仲介手数料は「価格x3%+6万(別途消費税)」)ですので諸経費の削減につながります。 ●「仲介手数料不要」ですがご安心ください!「1級建築士・宅建士・ファイナンシャルプランナー・行政書士」の担当者がご成約まで安心のサポート! |
||
| PRワード | |||
| 物件更新日 | 2026年2月11日 | ||
- 宮崎の売買情報をシェアしよう!
- スマートフォンで物件情報を見る
- コードを読み取ることで、スマートフォンでもご覧頂けます。
- 宅地建物取引業 / 宮崎県知事(1)5093
- エステートウエダ
- https://estateueda.com/
- 〒8800123 宮崎市大字芳士800-41
- 電話番号 : 090-8762-3435 FAX番号 : 0985-71-4059
- メールで問い合わせる(無料)
- ※空室状況、物件見学、内覧予約など
- エステートウエダ
- お急ぎの方はお電話で
090-8762-3435 - 物件番号 │ 2235010197
・不動産の売却や購入の相談はお気軽にお問合せください。
・不動産の価格査定はご事情に関わらず全て無料です。
・ホームページに掲載がない場合でも物件探しからアドバイスまで「一級建築士」「マンション管理士」の有資格者がご対応いたします。
・農地転用や市街化調整区域での建築等のご相談についても「行政書士」の有資格者が無料でご対応いたします。
















