暮らしの「あったらいいな」が、 すぐそばにある幸せ。二重サッシにより騒音も結露も軽減。
分譲マンション
- メールで問い合わせる(無料)
- ※空室状況、物件見学、内覧予約など
- (株)トータルホームズ
- サントノーレ花ヶ島 2階部分
- お急ぎの方はお電話で
0985-31-1399 - 物件番号 │ 0604010036
-
地図
-
ストリートビュー
-
動画
-
VR
※写真と現況が異なる場合は現況優先とします。
- オススメポイント
- 「サントノーレ花ヶ島」が位置するのは、コンビニ、スーパー、病院、飲食店などが揃う、生活利便性の高い花ヶ島エリア!二重窓による、静かで快適な居住空間です。広々とした駐車スペース、来客用駐車場も完備しております。リフォーム予定。
| 物件名称 | サントノーレ花ヶ島 2階部分 | ||
|---|---|---|---|
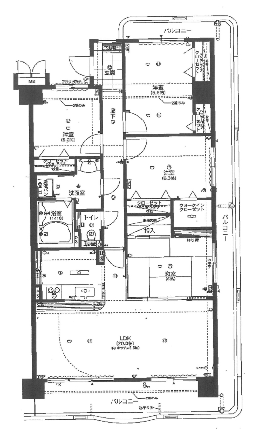
| 所在地 | 宮崎市花ケ島町京出1383-1 | 間取り | 4LDK(洋5.2 洋6 洋6.9 和6 LDK20) |
| 専有面積 | 100.25m²(30.32坪) | ベランダ面積 | |
| 総戸数/階数 | 63 / 地上11階 (エレベーター有) | 所在階 | 2階 |
| 築年月/予定日 | H18.2 / | 構造 | SRC |
| 駅 | JR 宮崎神宮駅(徒歩19分) | ||
| バス停 | 花ヶ島(徒歩4分) | ||
| 著名施設 | |||
| スーパー | 650 m (タイヨー 桜町店) | コンビニ | 620 m (セブン-イレブン 宮崎花ケ島町店) |
| ドラッグストア (薬局) |
390 m (ドラッグストア マツモトキヨシ 花ヶ島店) | 総合病院 | |
| 公園 | 250 m (水町緑地広場) | 銀行 | 350 m (宮崎銀行 花ケ島支店) |
| 病院(内科) | |||
| 校区 | 宮崎市立東大宮小学校(800m) / 宮崎市立東大宮中学校(900m) | 取引態様 | 一般媒介 |
| 管理費 | 9,200 円 | 修繕積立金 | 6,100 円 |
| 駐車場 | 4,000 円 | 仲介手数料 | 726,000 円 |
| 引渡期間/現況 | 相談 / 空き | ||
| 管理組合/形態 | 有 / 全部委託(巡回) | ペット | 不可 |
| 設備 | |||
| 投資金額 | 満室時 | ||
| 現状 | |||
| 一般備考 | 「サントノーレ花ヶ島」が位置するのは、コンビニ、スーパー、病院、飲食店などが揃う、生活利便性の高い花ヶ島エリア!二重窓による、静かで快適な居住空間です。広々とした駐車スペース、来客用駐車場も完備しております。リフォーム予定。 | ||
| PRワード | 宅配BOXエレベーターマンション利便性オートロック | ||
| 物件更新日 | 2025年12月8日 | ||
- 宮崎の売買情報をシェアしよう!
- スマートフォンで物件情報を見る
- コードを読み取ることで、スマートフォンでもご覧頂けます。
- 宅地建物取引業 / 宮崎県知事(4)4556
- (株)トータルホームズ
- http://www.totalhomes.jp
- 〒8800841 宮崎市吉村町江田原甲208-21
- 電話番号 : 0985-31-1399 FAX番号 : 0985-83-4227
- メールで問い合わせる(無料)
- ※空室状況、物件見学、内覧予約など
- (株)トータルホームズ
- サントノーレ花ヶ島 2階部分
- お急ぎの方はお電話で
0985-31-1399 - 物件番号 │ 0604010036
こんにちは!地域に密着した宮崎の不動産会社へようこそ!イオン宮崎・宮崎駅・フェニックスガーデン周辺など不動産物件情報満載です。
また、不動産の売却(土地や建物)のご相談も承ります。もちろん査定は無料です。お気軽にお問い合わせ下さい!!











よくある