戸建住宅
- メールで問い合わせる(無料)
- ※空室状況、物件見学、内覧予約など
- 常盤住宅サービス株式会社
- お急ぎの方はお電話で
0985-29-7777 - 物件番号 │ 0655010168
-
地図
-
ストリートビュー
-
動画
-
VR
※写真と現況が異なる場合は現況優先とします。
- オススメポイント
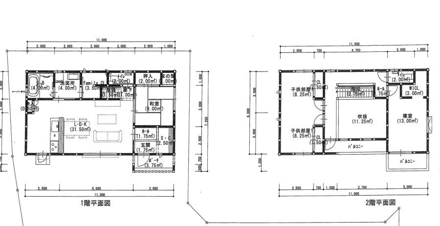
- 大塚エリアに築浅物件!駐車場も車種問わず3台以上駐車可能!2階の洋室は区切れば子供部屋2部屋にセパレートできます。ご家族の方必見です。
| 所在地 | 宮崎市大塚町六ツ合733-5 | ||
|---|---|---|---|
| 間取り/階数 | 3LDK(LDK19帖 和室4.5帖 洋室8帖 洋室10条) / 地上2階 | ||
| 総戸数 | 事務所戸数 | ||
| 土地面積 | 261.67m²(79.15坪) | 建物延面積 | 120.75m²(36.52坪) |
| 私道面積 | 1戸の専有面積 | ||
| 築年月 | R2.10 | 構造/屋根 | 木造 / |
| 用途地域 | 第1種低層住居専用地域 | ||
| 地目 | 宅地 | 都市計画 | 市街化 |
| 土地権利 | 所有権 | セットバック | |
| 容積率 | 80% | 建ぺい率 | 50% |
| 駅 | JR 宮崎駅(徒歩47分) | ||
| バス停 | 原(徒歩6分) | ||
| 著名施設 | |||
| スーパー | コンビニ | 700 m (宮崎市桜ケ丘町店) | |
| ドラッグストア (薬局) |
500 m (ドラッグストアコスモス小松店) | 総合病院 | 1500 m (潤和会記念病院) |
| 公園 | 銀行 | ||
| 病院(内科) | |||
| 校区 | 宮崎市立大塚小学校(1610m) / 宮崎市立大塚中学校(1430m) | 取引態様 | 一般媒介 |
| 駐車場 | 5台付 | 仲介手数料 | 1,122,000 円 |
| 接道1(向/幅) | 東 | 接道2(向/幅) | |
| 引渡期間/現況 | 相談 / 居住中 | ||
| 設備 | 水道(公営)排水(下水)バス(専用)トイレ(専用)冷暖房(エアコン)ウォークインクローゼット洗濯機置き場(室内)フローリング温水洗浄便座オール電化 インターホントイレ2ヵ所 | ||
| 投資金額 | 満室時 | ||
| 現状 | |||
| 一般備考 | |||
| PRワード | |||
| 物件更新日 | 2026年2月21日 | ||
- 宮崎の売買情報をシェアしよう!
- スマートフォンで物件情報を見る
- コードを読み取ることで、スマートフォンでもご覧頂けます。
- 宅地建物取引業 / 宮崎県知事(12)2755
- 常盤住宅サービス株式会社
- http://www.tokiwasre.jp
- 〒8800055 宮崎市南花ケ島町336-1第7常盤ビル 1F西
- 電話番号 : 0985-29-7777 FAX番号 : 0985-22-0702
- メールで問い合わせる(無料)
- ※空室状況、物件見学、内覧予約など
- 常盤住宅サービス株式会社
- お急ぎの方はお電話で
0985-29-7777 - 物件番号 │ 0655010168
親から子へ、子から孫へのお付き合い
環境造りと不動産の総合プランナー
不動産のことなら何でもご相談ください。
詳細につきましては、当社ホームページを是非ご覧ください。







よくある