飲食店や施設等に最適/敷地広々で駐車15台可/高鍋美術館の東側
店舗・事務所
- メールで問い合わせる(無料)
- ※空室状況、物件見学、内覧予約など
- 株式会社ハウザーライフ
- お急ぎの方はお電話で
0985-62-1711 - 物件番号 │ 0775020011
-
地図
-
ストリートビュー
-
動画
-
VR
※写真と現況が異なる場合は現況優先とします。
| 所在地 | 児湯郡高鍋町大字南高鍋6869-11 | ||
|---|---|---|---|
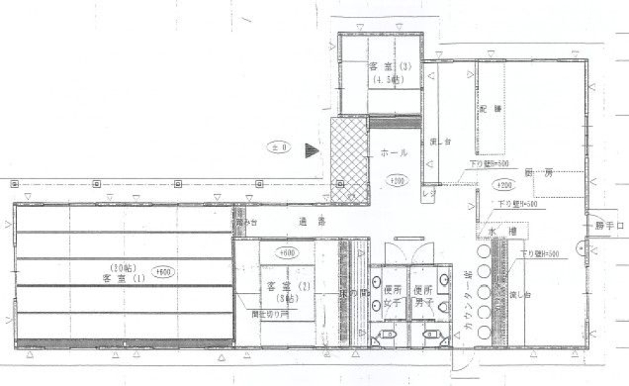
| 間取り/階数 | 3SLDK / 地上1階 | ||
| 総戸数 | 2 | 事務所戸数 | |
| 土地面積 | 720.93m²(218.08坪) | 建物延面積 | 142.71m²(43.16坪) |
| 私道面積 | 1戸の専有面積 | ||
| 築年月 | H13.11 | 構造/屋根 | 木造 / 瓦葺き |
| 用途地域 | 第1種住居地域 | ||
| 地目 | 宅地 | 都市計画 | 市街化 |
| 土地権利 | 所有権 | セットバック | |
| 容積率 | 200% | 建ぺい率 | 60% |
| 駅 | |||
| バス停 | 蓑崎(徒歩3分) | ||
| 著名施設 | 高鍋美術館(道路距離50m) | ||
| スーパー | コンビニ | ||
| ドラッグストア (薬局) |
総合病院 | ||
| 公園 | 220 m (舞鶴城城堀緑地公園) | 銀行 | 960 m (宮崎銀行 高鍋支店) |
| 病院(内科) | |||
| 校区 | 高鍋町立高鍋東小学校(1880m) / 高鍋町立高鍋東中学校(1890m) | 取引態様 | 一般媒介 |
| 駐車場 | 15台付 | 仲介手数料 | |
| 接道1(向/幅) | 南 / 15.0m | 接道2(向/幅) | 西 / 6.4m |
| 引渡期間/現況 | 相談 / 空き | ||
| 設備 | 水道(公営)ガス(プロパン)排水(下水) | ||
| 投資金額 | 満室時 | ||
| 現状 | |||
| 一般備考 | 県道沿いの料理店・飲食店や施設等に最適・高鍋美術館の東隣・駐車15台可・敷地広々200坪超・南西角地・別棟の休憩室兼物置あり・空家・内覧の際は事前にご連絡下さい。 | ||
| PRワード | |||
| 物件更新日 | 2025年11月10日 | ||
- 宮崎の売買情報をシェアしよう!
- スマートフォンで物件情報を見る
- コードを読み取ることで、スマートフォンでもご覧頂けます。
- 宅地建物取引業 / 宮崎県知事(5)4226
- 株式会社ハウザーライフ
- http://www.houserlife.co.jp/
- 〒8800804 宮崎市宮田町12番12号
- 電話番号 : 0985-62-1711 FAX番号 : 0985-62-1733
- メールで問い合わせる(無料)
- ※空室状況、物件見学、内覧予約など
- 株式会社ハウザーライフ
- お急ぎの方はお電話で
0985-62-1711 - 物件番号 │ 0775020011

















よくある