高層階東南角部屋 日当たり良好 眺望良好
分譲マンション
- メールで問い合わせる(無料)
- ※空室状況、物件見学、内覧予約など
- トライアップ不動産
- グランドパレス大淀Ⅱ 1201号室
- お急ぎの方はお電話で
0985-65-5331 - 物件番号 │ 1664010012
-
地図
-
ストリートビュー
-
動画
-
VR
※写真と現況が異なる場合は現況優先とします。
| 物件名称 | グランドパレス大淀Ⅱ 1201号室 | ||
|---|---|---|---|
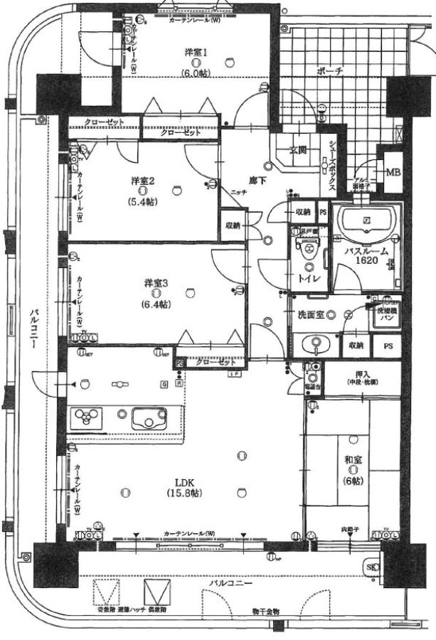
| 所在地 | 宮崎市太田1丁目2-16 | 間取り | 4LDK(LDK15.8 和6 洋6 洋5.4 洋6.4) |
| 専有面積 | 88.55m²(26.78坪) | ベランダ面積 | |
| 総戸数/階数 | 83 / 地上14階 (エレベーター有) | 所在階 | 12階 |
| 築年月/予定日 | H20.10 / | 構造 | SRC |
| 駅 | |||
| バス停 | 南詰バス停(徒歩5分) | ||
| 著名施設 | |||
| スーパー | 770 m (鮮ど市場) | コンビニ | 360 m (ファミリーマート) |
| ドラッグストア (薬局) |
340 m (コスモス薬品) | 総合病院 | |
| 公園 | 銀行 | 630 m (宮崎銀行大淀支店) | |
| 病院(内科) | |||
| 校区 | 宮崎市立大淀小学校(650m) / 宮崎市立大淀中学校(870m) | 取引態様 | 一般媒介 |
| 管理費 | 6,000 円(税込) | 修繕積立金 | 4,700 円 |
| 駐車場 | 2台付 | 仲介手数料 | 795,000 円 |
| 引渡期間/現況 | 相談 / 空き | ||
| 管理組合/形態 | 有 / 全部委託(日勤) | ペット | 可(小型犬1匹室内のみ) |
| 設備 | 水道(公営)ガス(都市)排水(下水)バス(専用)トイレ(専用)バス・トイレ別シャワーコンロ種別(ガス)コンロ口数(三口)システムキッチン給湯追焚機能シャワー付洗面化粧台洗濯機置き場(室内)バルコニーフローリング駐輪場ありタイル貼りINTERNET対応(その他インターネット)角部屋TVドアホン温水洗浄便座浴室乾燥機ごみ出し24時間OK洗面所独立全居室収納クローゼットシューズボックス モニター付きインターホン敷地内ゴミ置場 | ||
| 投資金額 | 満室時 | ||
| 現状 | |||
| 一般備考 | 高層階東南角部屋 酸素温泉設備 ペット可 駐車場2台 |
||
| PRワード | |||
| 物件更新日 | 2025年10月25日 | ||
- 宮崎の売買情報をシェアしよう!
- スマートフォンで物件情報を見る
- コードを読み取ることで、スマートフォンでもご覧頂けます。
- 宅地建物取引業 / 宮崎県知事(2)4818
- トライアップ不動産
- http://www.tryup.biz
- 〒8800905 宮崎市中村西3丁目1番7号成松マンション101
- 電話番号 : 0985-65-5331 FAX番号 : 0985-65-5276
- メールで問い合わせる(無料)
- ※空室状況、物件見学、内覧予約など
- トライアップ不動産
- グランドパレス大淀Ⅱ 1201号室
- お急ぎの方はお電話で
0985-65-5331 - 物件番号 │ 1664010012















よくある