最上階角部屋 未入居物件 家具家電付
分譲マンション
- メールで問い合わせる(無料)
- ※空室状況、物件見学、内覧予約など
- トライアップ不動産
- MJR大淀リバーサイド 1404
- お急ぎの方はお電話で
0985-65-5331 - 物件番号 │ 1664010013
-
地図
-
ストリートビュー
-
動画
-
VR
※写真と現況が異なる場合は現況優先とします。
- オススメポイント
- 築浅未入居物件 全室エアコン付き 家具家電付 最上階角部屋
| 物件名称 | MJR大淀リバーサイド 1404 | ||
|---|---|---|---|
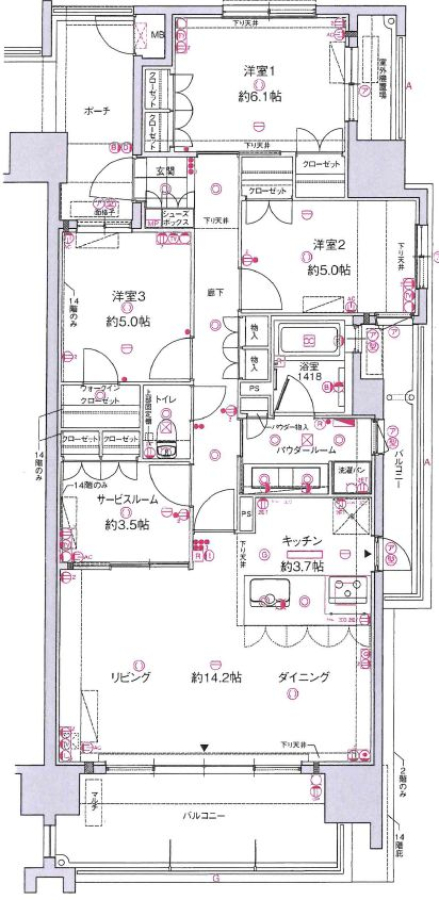
| 所在地 | 宮崎市淀川1丁目33-1 | 間取り | 3SLDK(LDK14.2 洋6.1 洋5.0 洋5.0 S3.5) |
| 専有面積 | 86.48m²(26.16坪) | ベランダ面積 | |
| 総戸数/階数 | 52 / 地上14階 (エレベーター有) | 所在階 | 14階 |
| 築年月/予定日 | R6.1 / | 構造 | SRC |
| 駅 | |||
| バス停 | 南詰バス停徒歩2分(徒歩2分) | ||
| 著名施設 | |||
| スーパー | コンビニ | 550 m (セブンイレブン) | |
| ドラッグストア (薬局) |
680 m (コスモス薬品) | 総合病院 | |
| 公園 | 500 m (橘公園) | 銀行 | 580 m (宮崎太陽銀行) |
| 病院(内科) | 370 m (福永内科小児科) | ||
| 校区 | 宮崎市立大淀小学校(260m) / 宮崎市立大淀中学校(600m) | 取引態様 | 専任 |
| 管理費 | 13,000 円(税込) | 修繕積立金 | 8,600 円 |
| 駐車場 | 1台付 | 仲介手数料 | 1,374,000 円 |
| 引渡期間/現況 | 相談 / 空き | ||
| 管理組合/形態 | 有 / 全部委託(日勤) | ペット | 可(小型犬1匹室内のみ) |
| 設備 | 水道(公営)ガス(都市)排水(下水)バス(専用)トイレ(専用)バス・トイレ別シャワーコンロ種別(ガス)コンロ口数(三口)システムキッチン給湯追焚機能シャワー付洗面化粧台冷暖房(エアコン)洗濯機置き場(室内)CSアンテナBSアンテナバルコニーフローリング宅配ボックス駐輪場ありバイク置き場ありタイル貼りINTERNET対応(光ファイバー)角部屋TVドアホン住宅性能保証付きバリアフリー温水洗浄便座浴室乾燥機耐震構造ごみ出し24時間OK家具・家電付洗面所独立全居室収納クローゼットシューズボックス照明器具付設計住宅性能評価書長期優良住宅認定通知書耐震基準適合証明書建設住宅性能評価書(新築時) 浴室暖房モニター付きインターホン敷地内ゴミ置場 | ||
| 投資金額 | 満室時 | ||
| 現状 | |||
| 一般備考 | 築浅未入居物件 全室エアコン付き 家具家電付 最上階角部屋 | ||
| PRワード | |||
| 物件更新日 | 2025年10月29日 | ||
- 宮崎の売買情報をシェアしよう!
- スマートフォンで物件情報を見る
- コードを読み取ることで、スマートフォンでもご覧頂けます。
- 宅地建物取引業 / 宮崎県知事(2)4818
- トライアップ不動産
- http://www.tryup.biz
- 〒8800905 宮崎市中村西3丁目1番7号成松マンション101
- 電話番号 : 0985-65-5331 FAX番号 : 0985-65-5276
- メールで問い合わせる(無料)
- ※空室状況、物件見学、内覧予約など
- トライアップ不動産
- MJR大淀リバーサイド 1404
- お急ぎの方はお電話で
0985-65-5331 - 物件番号 │ 1664010013






















よくある