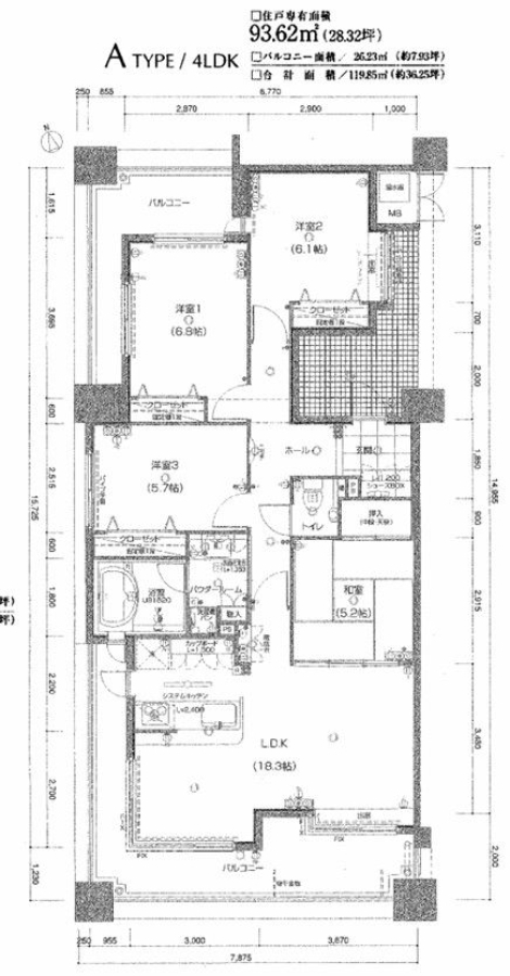
【センターイン型間取り/ペット可/4LDK/93.62㎡/角住戸/オール電化/駐車場屋根付き】
分譲マンション
- メールで問い合わせる(無料)
- ※空室状況、物件見学、内覧予約など
- 株式会社ボンズ・ジャパン
- オーヴィジョン神宮東 301
- お急ぎの方はお電話で
0985-65-8300 - 物件番号 │ 1844010038
-
地図
-
ストリートビュー
-
動画
-
VR
※写真と現況が異なる場合は現況優先とします。
- オススメポイント
- 〇マンションで人気のセンターイン型間取りで、居室面積が広く、両面バルコニーあり
○機械式駐車場ですが、1階ピロティ部分のため雨に濡れずに出入り可
〇浴室は、換気の窓も付いています
〇リフォーム歴 2021年IHコンロ入れ替え、2022年エコキュート交換
■生活情報
大宮小学校・・・1315m(調整区域で江平小学校も可)
大宮中学校・・・1630m(調整区域で宮崎東中学校・東大宮中学校も可)
■弊社サービス
・購入・売却に関する無料相談
・無料住宅ローンのシュミレーション及びローン審査のサポート
・自宅送迎サービス
・オンライン内見・接客
(株)ボンズジャパン 宮崎本店
◆0985-65-8300◆
居住中ですが、内覧可能ですので、お気軽にお問合せ下さい!
| 物件名称 | オーヴィジョン神宮東 301 | ||
|---|---|---|---|
| 所在地 | 宮崎市神宮東2丁目3-48 | 間取り | 4LDK |
| 専有面積 | 93.62m²(28.32坪) | ベランダ面積 | |
| 総戸数/階数 | 36 / 地上10階 (エレベーター有) | 所在階 | 3階 |
| 築年月/予定日 | H19.7 / | 構造 | RC |
| 駅 | JR 宮崎神宮駅(徒歩4分) | ||
| バス停 | |||
| 著名施設 | |||
| スーパー | 620 m (ショッピングくすめぎ) | コンビニ | 200 m (セブン-イレブン 宮崎神宮東3丁目店) |
| ドラッグストア (薬局) |
総合病院 | 750 m (いれば屋石井) | |
| 公園 | 1130 m (JRA宮崎育成牧場) | 銀行 | 190 m (高鍋信用金庫 宮崎北支店) |
| 病院(内科) | |||
| 校区 | 宮崎市立大宮小学校(1260m)、宮崎市立江平小学校(1500m) / 宮崎市立大宮中学校(1630m)、宮崎市立宮崎東中学校(570m)、宮崎市立東大宮中学校(2570m) | 取引態様 | 専任 |
| 管理費 | 11,200 円(税込) | 修繕積立金 | 13,600 円 |
| 駐車場 | 3,000 円 | 仲介手数料 | |
| 引渡期間/現況 | 即時 / 居住中 | ||
| 管理組合/形態 | 有 / 全部委託 | ペット | 可 |
| 設備 | 水道(公営)排水(下水)バス(専用)トイレ(専用)バス・トイレ別シャワーコンロ種別(IH)コンロ口数(三口)システムキッチン給湯洗濯機置き場(室内)オートロック出窓フローリング駐輪場ありバイク置き場あり角部屋TVドアホンバリアフリーオール電化カウンターキッチン浴室乾燥機洗面所独立防犯カメラ全居室収納クローゼットシューズボックス モニター付きインターホン敷地内ゴミ置場 | ||
| 投資金額 | 満室時 | ||
| 現状 | |||
| 一般備考 | 【弊社の特徴】 ・お客様専用URLの「マイページ」を作成致します。 【マイページ 3つの主な機能】 ①物件資料:図面に加えて、価格や面積などの主要情報が一目で確認可能です。 ②物件マップ:物件の位置や周辺施設を地図上で確認できます。近隣のスーパー、病院、ハザードマップなどが一目で分かります。 ③内見予約: 簡単な操作で内見予約ができ、手続きがスムーズに進められます。 |
||
| PRワード | |||
| 物件更新日 | 2026年5月22日 | ||
- 宮崎の売買情報をシェアしよう!
- スマートフォンで物件情報を見る
- コードを読み取ることで、スマートフォンでもご覧頂けます。
- 宅地建物取引業 / 国土交通大臣(3)8968
- 株式会社ボンズ・ジャパン
- https://www.bonds-j.co.jp/
- 〒8800805 宮崎市橘通東3丁目6番19号EST2ビル6階
- 電話番号 : 0985-65-8300 FAX番号 : 0985-35-6581
- メールで問い合わせる(無料)
- ※空室状況、物件見学、内覧予約など
- 株式会社ボンズ・ジャパン
- オーヴィジョン神宮東 301
- お急ぎの方はお電話で
0985-65-8300 - 物件番号 │ 1844010038


































よくある