価格改定しました!【71㎡/3LDK/小学校近く、階下がエントランスのため、子育て世帯にオススメ】
分譲マンション
- メールで問い合わせる(無料)
- ※空室状況、物件見学、内覧予約など
- 株式会社ボンズ・ジャパン
- ケントパレス宮崎
- お急ぎの方はお電話で
0985-65-8300 - 物件番号 │ 1844010040
-
地図
-
ストリートビュー
-
動画
-
VR
※写真と現況が異なる場合は現況優先とします。
- オススメポイント
- 〇2024年大規模修繕工事完了しており、外観キレイです!
〇2階住戸で、階下がエントランスのため、足音気にせずに生活できるため、子育て世帯にオススメ!
○一部リフォーム済み
4年前 ガスコンロ・レンジフード交換
4年前 トイレ便座交換
10年前 クロス交換
■生活情報
東大宮小学校・・・650m
東大宮中学校・・・1760m
■弊社サービス
・購入・売却に関する無料相談
・無料住宅ローンのシュミレーション及びローン審査のサポート
・自宅送迎サービス
・オンライン内見・接客
居住中ですが、内覧可能ですので、お気軽にお問合せ下さい!
| 物件名称 | ケントパレス宮崎 | ||
|---|---|---|---|
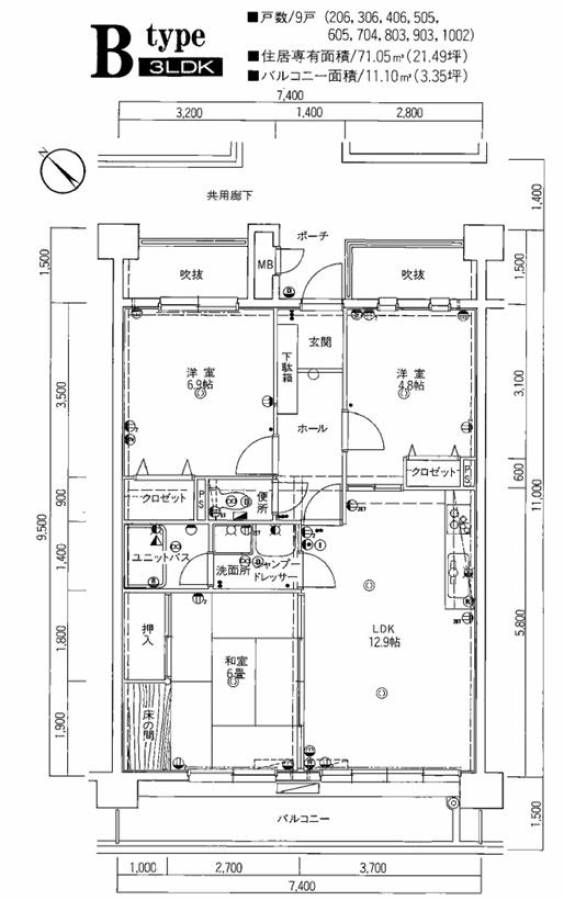
| 所在地 | 宮崎市大島町笹原2016 | 間取り | 3LDK |
| 専有面積 | 71.05m²(21.49坪) | ベランダ面積 | |
| 総戸数/階数 | 95 / 地上10階 (エレベーター有) | 所在階 | 2階 |
| 築年月/予定日 | H3.9 / | 構造 | SRC |
| 駅 | JR 宮崎神宮駅(徒歩10分) | ||
| バス停 | |||
| 著名施設 | |||
| スーパー | 920 m (ショッピングくすめぎ) | コンビニ | 550 m (セブン-イレブン 宮崎南花ヶ島町店) |
| ドラッグストア (薬局) |
総合病院 | 600 m (いれば屋石井) | |
| 公園 | 80 m (花ヶ島笹原緑地広場) | 銀行 | 580 m (宮崎太陽銀行 花ケ島支店) |
| 病院(内科) | |||
| 校区 | 宮崎市立東大宮小学校(650m) / 宮崎市立東大宮中学校(1760m) | 取引態様 | 専属専任 |
| 管理費 | 7,390 円 | 修繕積立金 | 21,300 円 |
| 駐車場 | 駐車場なし | 仲介手数料 | |
| 引渡期間/現況 | 相談 / 居住中 | ||
| 管理組合/形態 | 有 / 全部委託(日勤) | ペット | 不可 |
| 設備 | 水道(公営)排水(下水)バス(専用)トイレ(専用)バス・トイレ別コンロ種別(ガス)コンロ口数(三口)給湯追焚機能洗濯機置き場(室内)オートロックフローリング宅配ボックス駐輪場ありバイク置き場ありタイル貼りINTERNET対応(光ファイバー)TVドアホン防犯カメラ全居室収納クローゼットシューズボックスオートバス モニター付きインターホン敷地内ゴミ置場 | ||
| 投資金額 | 満室時 | ||
| 現状 | |||
| 一般備考 | |||
| PRワード | |||
| 物件更新日 | 2026年1月10日 | ||
- 宮崎の売買情報をシェアしよう!
- スマートフォンで物件情報を見る
- コードを読み取ることで、スマートフォンでもご覧頂けます。
- 宅地建物取引業 / 国土交通大臣(2)8968
- 株式会社ボンズ・ジャパン
- https://www.bonds-j.co.jp/
- 〒8800805 宮崎市橘通東3丁目6番19号EST2ビル6階
- 電話番号 : 0985-65-8300 FAX番号 : 0985-35-6581
- メールで問い合わせる(無料)
- ※空室状況、物件見学、内覧予約など
- 株式会社ボンズ・ジャパン
- ケントパレス宮崎
- お急ぎの方はお電話で
0985-65-8300 - 物件番号 │ 1844010040


































よくある