小林市南西方の戸建住宅(株式会社とおりの不動産屋さん)

宮崎の売買情報ならREC宮崎におまかせ!

小林総合運動公園(十三塚)近隣の新築平屋住宅

戸建住宅

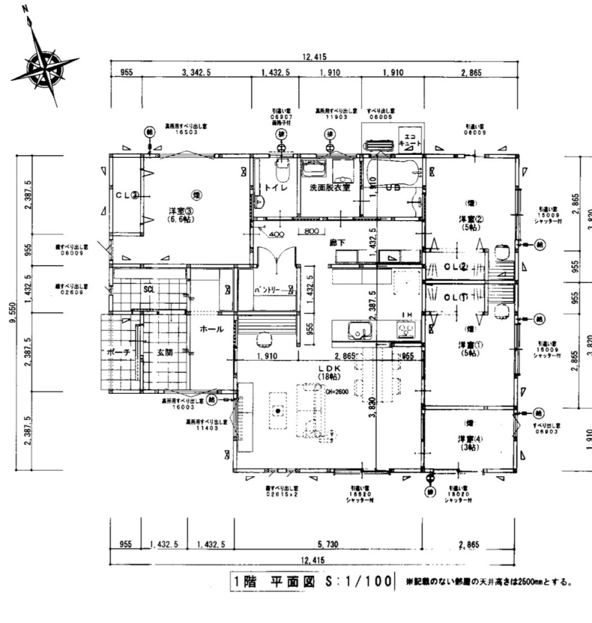
間取り
3SLDK
金額
2,280 万円(税込)
市町
小林市南西方
メールで問い合わせる(無料)
※空室状況、物件見学、内覧予約など
株式会社とおりの不動産屋さん
お急ぎの方はお電話で電話番号アイコン画像0985-45-7508
物件番号  │  1855010072

※写真と現況が異なる場合は現況優先とします。

オススメポイント
モデルハウス展示用として建設され、細部にこだわった平屋住宅です。
30坪を超える広々として平屋住宅ですので、一度、ご覧ください。
所在地 小林市南西方7441-60
間取り/階数 3SLDK / 地上1階
総戸数 1 事務所戸数
土地面積 241.17m²(72.95坪) 建物延面積 107.16m²(32.41坪)
私道面積 1戸の専有面積
築年月 R6.6 構造/屋根 木造 / 鋼板葺き
用途地域 無指定
地目 宅地 都市計画 未線引
土地権利 所有権 セットバック
容積率   建ぺい率  
JR 小林駅(徒歩47分)
バス停  
著名施設  
スーパー コンビニ
ドラッグストア
(薬局)
総合病院
公園 銀行
病院(内科)
校区 小林市立小林小学校(2700m) / 小林市立小林中学校(1900m) 取引態様 仲介
駐車場 2台付 仲介手数料  
   
接道1(向/幅) 南 / 13.5m 接道2(向/幅)  
引渡期間/現況 即時 / その他
設備 水道(公営)排水(浄化槽)バス(専用)トイレ(専用)バス・トイレ別シャワーコンロ種別(IH)コンロ口数(三口)システムキッチン給湯追焚機能シャワー付洗面化粧台冷暖房(エアコン)ウォークインクローゼット洗濯機置き場(室内)専用庭フローリングTVドアホン温水洗浄便座オール電化カウンターキッチン洗面所独立浴室1.6x2.0m以上食器洗い乾燥機全居室収納クローゼットシューズボックスシューズインクローゼットオートバス瑕疵保証(不動産会社独自)(有)新築時・増改築時の設計図書 インターホンテラス上水道エコキュートシューズクローク
投資金額   満室時  
現状  
一般備考
PRワード 十三塚小林総合運動公園新築平屋
物件更新日 2025年10月16日
宮崎の売買情報をシェアしよう!
スマートフォンで物件情報を見る
QRコード
コードを読み取ることで、スマートフォンでもご覧頂けます。
宅地建物取引業 / 宮崎県知事(2)4915
株式会社とおりの不動産屋さん
https://www.to-ri.net
〒8800014 宮崎市鶴島1丁目9-5
電話番号 : 0985-45-7508 FAX番号 : 050-3457-7778
メールで問い合わせる(無料)
※空室状況、物件見学、内覧予約など
株式会社とおりの不動産屋さん
お急ぎの方はお電話で電話番号アイコン画像0985-45-7508
物件番号  │  1855010072
  • 注文住宅カタログ資料請求 宮崎の住宅会社・工務店に注文住宅カタログ資料の請求ができます。
  • 物件一括査定依頼 REC加盟店にまとめて査定依頼
REC宮崎総合トップへのリンク画像 REC宮崎賃貸トップへのリンク画像 REC宮崎物件査定トップへのリンク画像 よくある
質問
PAGE TOP