価格更新1,980万円→1,500万円
戸建住宅
- メールで問い合わせる(無料)
- ※空室状況、物件見学、内覧予約など
- 株式会社とおりの不動産屋さん
- お急ぎの方はお電話で
0985-45-7508 - 物件番号 │ 1855010100
-
地図
-
ストリートビュー
-
動画
-
VR
※写真と現況が異なる場合は現況優先とします。
| 所在地 | 宮崎市清武町池田台15-7 | ||
|---|---|---|---|
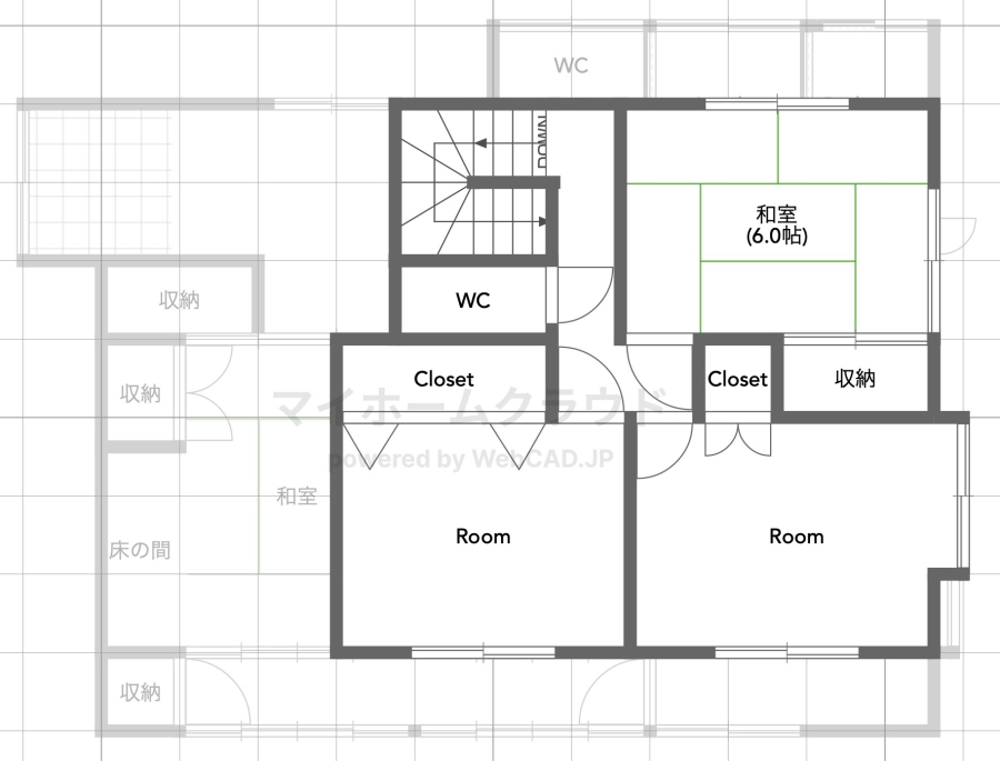
| 間取り/階数 | 5LDK / 地上2階 | ||
| 総戸数 | 事務所戸数 | ||
| 土地面積 | 236.75m²(71.61坪) | 建物延面積 | 134.47m²(40.67坪) |
| 私道面積 | 1戸の専有面積 | ||
| 築年月 | H1.8 | 構造/屋根 | 木造 / 瓦葺き |
| 用途地域 | 第1種低層住居専用地域 | ||
| 地目 | 宅地 | 都市計画 | 市街化 |
| 土地権利 | 所有権 | セットバック | 無 |
| 容積率 | 80% | 建ぺい率 | 50% |
| 駅 | JR 加納駅(徒歩30分) | ||
| バス停 | |||
| 著名施設 | |||
| スーパー | 650 m (マルミヤストア 清武店) | コンビニ | 650 m (ファミリーマート 加納バイパス店) |
| ドラッグストア (薬局) |
総合病院 | ||
| 公園 | 180 m (第3次池田台団地3号公園) | 銀行 | |
| 病院(内科) | |||
| 校区 | 宮崎市立加納小学校(850m) / 宮崎市立加納中学校(900m) | 取引態様 | 仲介 |
| 駐車場 | 1台付 | 仲介手数料 | |
| 接道1(向/幅) | 西 / 8.0m | 接道2(向/幅) | |
| 引渡期間/現況 | 相談 / 空き | ||
| 設備 | 水道(公営)排水(下水)バス(専用)トイレ(専用)バス・トイレ別シャワー給湯シャワー付洗面化粧台洗濯機置き場(室内)専用庭出窓フローリングカウンターキッチン | ||
| 投資金額 | 満室時 | ||
| 現状 | |||
| 一般備考 | 駐車場は1台のみ駐車可能です。 増設は難しいかと思います。 2階和室部分に雨漏り箇所があります。 |
||
| PRワード | 池田台50坪以上70坪以上高台加納小学校区 | ||
| 物件更新日 | 2026年4月21日 | ||
- 宮崎の売買情報をシェアしよう!
- スマートフォンで物件情報を見る
- コードを読み取ることで、スマートフォンでもご覧頂けます。
- 宅地建物取引業 / 宮崎県知事(2)4915
- 株式会社とおりの不動産屋さん
- https://www.to-ri.net
- 〒8800014 宮崎市鶴島1丁目9-5
- 電話番号 : 0985-45-7508 FAX番号 : 050-3457-7778
- メールで問い合わせる(無料)
- ※空室状況、物件見学、内覧予約など
- 株式会社とおりの不動産屋さん
- お急ぎの方はお電話で
0985-45-7508 - 物件番号 │ 1855010100





















よくある