東諸県郡国富町の戸建住宅(株式会社ホームスタイルコーポレーション)

宮崎の売買情報ならREC宮崎におまかせ!

店舗付平家中古住宅の募集です

戸建住宅

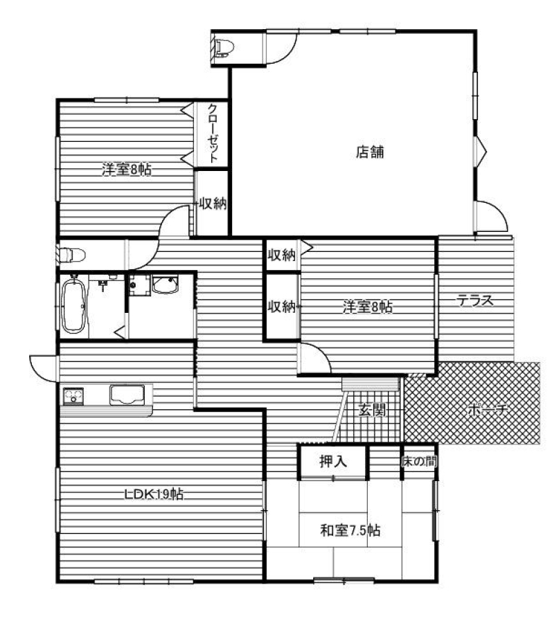
間取り
3LDK
金額
1,780 万円(税込)
市町
東諸県郡国富町
メールで問い合わせる(無料)
※空室状況、物件見学、内覧予約など
株式会社ホームスタイルコーポレーション
お急ぎの方はお電話で電話番号アイコン画像0985-59-9871
物件番号  │  2175010043

※写真と現況が異なる場合は現況優先とします。

所在地 東諸県郡国富町大字本庄1723-5
間取り/階数 3LDK / 地上1階
総戸数 事務所戸数
土地面積 280.73m²(84.92坪) 建物延面積 156.1m²(47.22坪)
私道面積 1戸の専有面積
築年月 H16.10 構造/屋根 木造 / スレート葺き
用途地域 第2種中高層住居専用地域
地目 宅地 都市計画 市街化
土地権利 所有権 セットバック
容積率 200% 建ぺい率 60%
 
バス停 犬熊入口(徒歩5分)
著名施設  
スーパー 170 m  (サンリッチ 国富店) コンビニ
ドラッグストア
(薬局)
440 m  ((有)高山よろず本店) 総合病院 310 m  (国富耳鼻咽喉科医院)
公園 230 m  (国富町本庄公園) 銀行 310 m  (高鍋信用金庫 国富支店)
病院(内科)
校区 国富町立本庄小学校(1110m) / 国富町立本庄中学校(2390m) 取引態様 仲介
駐車場 3台付 仲介手数料 653,400 円
   
接道1(向/幅) 北東 / 12.0m 接道2(向/幅) 南東 / 9.0m
引渡期間/現況 即時 / 空き
設備 水道(公営)ガス(プロパン)排水(下水) エコキュート
投資金額   満室時  
現状  
一般備考 便利で落ち着いた住環境の平家建て住宅です。 第二種中高層住居地域内につき、住まいとお店の両立が可能。 自宅で開業・リモートワーク・プライベートサロンなど多用途に対応できます。
PRワード  
物件更新日 2025年10月14日
宮崎の売買情報をシェアしよう!
スマートフォンで物件情報を見る
QRコード
コードを読み取ることで、スマートフォンでもご覧頂けます。
宅地建物取引業 / 宮崎県知事(1)5085
株式会社ホームスタイルコーポレーション
https://www.m-homestyle.co.jp/
〒8800951 宮崎市大塚町大塩道下4699番地1ニューカーサコダマⅢ-102号
電話番号 : 0985-59-9871 FAX番号 : 050-3730-8894
メールで問い合わせる(無料)
※空室状況、物件見学、内覧予約など
株式会社ホームスタイルコーポレーション
お急ぎの方はお電話で電話番号アイコン画像0985-59-9871
物件番号  │  2175010043
  • 注文住宅カタログ資料請求 宮崎の住宅会社・工務店に注文住宅カタログ資料の請求ができます。
  • 物件一括査定依頼 REC加盟店にまとめて査定依頼
REC宮崎総合トップへのリンク画像 REC宮崎賃貸トップへのリンク画像 REC宮崎物件査定トップへのリンク画像 よくある
質問
PAGE TOP