築浅2LDK太陽光搭載!
戸建住宅
- メールで問い合わせる(無料)
- ※空室状況、物件見学、内覧予約など
- 株式会社ホームスタイルコーポレーション
- お急ぎの方はお電話で
0985-59-9871 - 物件番号 │ 2175010053
-
地図
-
ストリートビュー
-
動画
-
VR
※写真と現況が異なる場合は現況優先とします。
| 所在地 | 宮崎市佐土原町下那珂1901-23 | ||
|---|---|---|---|
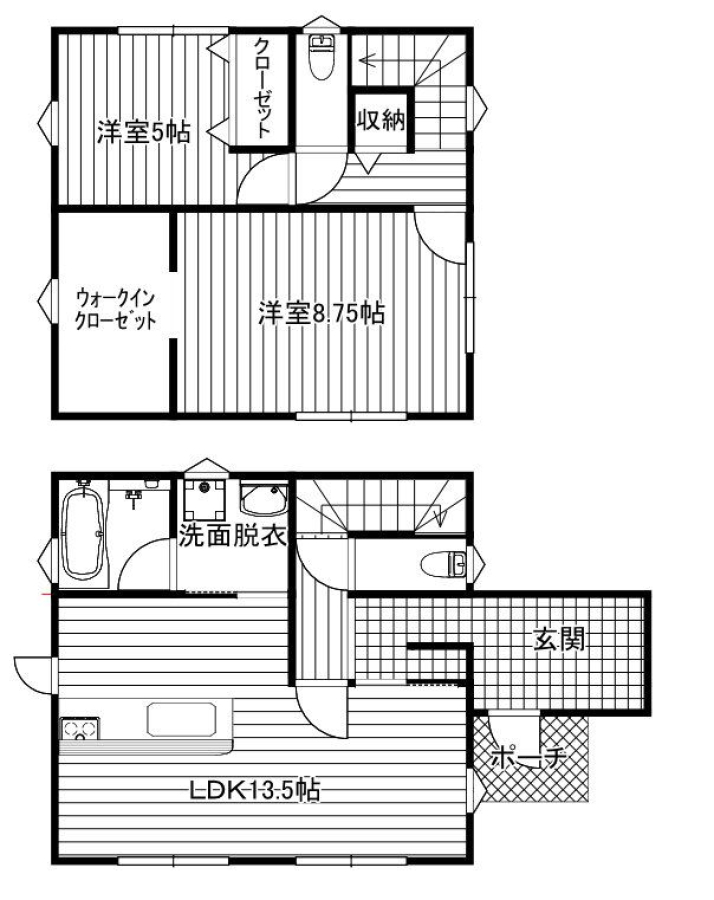
| 間取り/階数 | 2LDK(LDK13.5・洋8.75・洋5) / 地上2階 | ||
| 総戸数 | 事務所戸数 | ||
| 土地面積 | 257.16m²(77.79坪) | 建物延面積 | 85.49m²(25.86坪) |
| 私道面積 | 1戸の専有面積 | ||
| 築年月 | R4.4 | 構造/屋根 | 木造 / 鋼板葺き |
| 用途地域 | 第2種低層住居専用地域 | ||
| 地目 | 宅地 | 都市計画 | 市街化 |
| 土地権利 | 所有権 | セットバック | |
| 容積率 | 150% | 建ぺい率 | 60% |
| 駅 | JR 佐土原駅(徒歩25分) | ||
| バス停 | 南広瀬(徒歩8分) | ||
| 著名施設 | |||
| スーパー | 830 m (コープみやざき 佐土原店) | コンビニ | 1130 m (セブン-イレブン 佐土原広瀬中学校前店) |
| ドラッグストア (薬局) |
730 m (くすりの救命堂 佐土原店) | 総合病院 | 1360 m (タナカ在宅クリニック) |
| 公園 | 450 m (シーサイドタウン北公園) | 銀行 | 1240 m (宮崎太陽銀行 佐土原支店) |
| 病院(内科) | |||
| 校区 | 宮崎市立広瀬小学校(1320m) / 宮崎市立広瀬中学校(1260m) | 取引態様 | 一般媒介 |
| 駐車場 | 4台付 | 仲介手数料 | 792,000 円 |
| 接道1(向/幅) | 南 / 4.0m | 接道2(向/幅) | |
| 引渡期間/現況 | 即時 / 空き | ||
| 設備 | 水道(公営)排水(下水)バス(専用)トイレ(専用)コンロ種別(IH)給湯洗濯機置き場(室内) | ||
| 投資金額 | 満室時 | ||
| 現状 | |||
| 一般備考 | 令和4年4月建築の築浅美邸登場!コンパクトながら使い勝手の良い2LDK。ご夫婦世帯・少人数ファミリーの方におすすめです。無駄のない間取り設計で、生活動線もスムーズ。 内外装ともに状態良好。大きなリフォーム不要でそのままご入居可能です。築浅・太陽光付き・駐車4台という好条件が揃った物件です。 ぜひ一度、現地をご体感ください。 |
||
| PRワード | |||
| 物件更新日 | 2026年2月21日 | ||
- 宮崎の売買情報をシェアしよう!
- スマートフォンで物件情報を見る
- コードを読み取ることで、スマートフォンでもご覧頂けます。
- 宅地建物取引業 / 宮崎県知事(1)5085
- 株式会社ホームスタイルコーポレーション
- https://www.m-homestyle.co.jp/
- 〒8800951 宮崎市大塚町大塩道下4699番地1ニューカーサコダマⅢ-102号
- 電話番号 : 0985-59-9871 FAX番号 : 050-3730-8894
- メールで問い合わせる(無料)
- ※空室状況、物件見学、内覧予約など
- 株式会社ホームスタイルコーポレーション
- お急ぎの方はお電話で
0985-59-9871 - 物件番号 │ 2175010053


























よくある