大塚町地蔵田★全館空調システム搭載!外観と内観のギャップのある家♪
戸建住宅
- メールで問い合わせる(無料)
- ※空室状況、物件見学、内覧予約など
- 株式会社Rays
- お急ぎの方はお電話で
0985-69-6974 - 物件番号 │ 2345010009
-
地図
-
ストリートビュー
-
動画
-
VR
※写真と現況が異なる場合は現況優先とします。
- オススメポイント
- ◇小中学校まで徒歩約15分
◇お買い物に便利なお店が複数あり、日常生活に便利な住環境
◇駐車スペースは充実の並列3台!お客様が来ても安心
◇オール電化・省令準耐火構造
◇全館空調システム搭載で1年中快適に過ごせる
◇外部倉庫はアウトドア用品や季節の電化製品など収納できて大活躍
◇南庭はちょっとしたテラスや人工芝施工で草木の手入れがなく管理も楽々
◇全室フローリング・吹抜のある間取り
| 所在地 | 宮崎市大塚町地蔵田4638-4 | ||
|---|---|---|---|
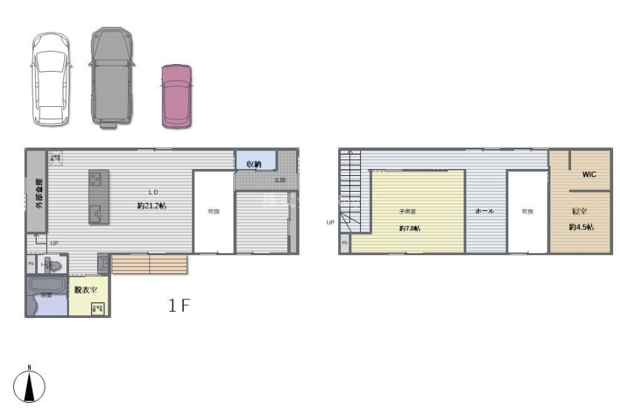
| 間取り/階数 | 2LDK / 地上2階 | ||
| 総戸数 | 1 | 事務所戸数 | |
| 土地面積 | 182.07m²(55.07坪) | 建物延面積 | 92.5m²(27.98坪) |
| 私道面積 | 1戸の専有面積 | ||
| 築年月 | R4.12 | 構造/屋根 | 木造 / 鋼板葺き |
| 用途地域 | 第2種住居地域 | ||
| 地目 | 宅地 | 都市計画 | 市街化 |
| 土地権利 | 所有権 | セットバック | 無 |
| 容積率 | 200% | 建ぺい率 | 60% |
| 駅 | JR 南宮崎駅(徒歩46分) | ||
| バス停 | |||
| 著名施設 | |||
| スーパー | 370 m (コープみやざき 大塚店) | コンビニ | 390 m (セブン-イレブン 宮崎大坪町店) |
| ドラッグストア (薬局) |
600 m (ドラッグストアコスモス 大塚店) | 総合病院 | 660 m (宮崎若久病院) |
| 公園 | 560 m (宝塚1号街区公園) | 銀行 | 780 m (宮崎銀行 大塚中央支店) |
| 病院(内科) | |||
| 校区 | 宮崎市立江南小学校(1060m) / 宮崎市立大塚中学校(1610m) | 取引態様 | 一般媒介 |
| 駐車場 | 3台付 | 仲介手数料 | 1,452,000 円 |
| 接道1(向/幅) | 北 / 4.0m | 接道2(向/幅) | |
| 引渡期間/現況 | 相談 / 居住中 | ||
| 設備 | 水道(公営)ガス(その他)排水(下水)バス(専用)トイレ(専用)バス・トイレ別コンロ種別(IH)コンロ口数(三口)システムキッチン追焚機能シャワー付洗面化粧台ウォークインクローゼット洗濯機置き場(室内)専用庭フローリングTVドアホン温水洗浄便座オール電化カウンターキッチン洗面所独立オートバス インターホン倉庫洗面化粧台上水道エコキュート | ||
| 投資金額 | 満室時 | ||
| 現状 | |||
| 一般備考 | ◇宮崎住宅建設工業建築・アフターケアーも相談できて安心 ◇宅地の他に公衆用道路持分2分の1あり(地番4638番3 7.13㎡) ※居住中物件となりますので、ご内覧は事前予約の上、日程調整をします! お気軽にお問い合わせください♪ |
||
| PRワード | 大塚町築浅駐車場3台オール電化空調システム | ||
| 物件更新日 | 2026年1月19日 | ||
- 宮崎の売買情報をシェアしよう!
- スマートフォンで物件情報を見る
- コードを読み取ることで、スマートフォンでもご覧頂けます。
- 宅地建物取引業 / 宮崎県知事(1)5133
- 株式会社Rays
- https://rays-estate.co.jp
- 〒8800841 宮崎市吉村町西中甲1330番地2Winkel 202号
- 電話番号 : 0985-69-6974 FAX番号 : 0985-69-7168
- メールで問い合わせる(無料)
- ※空室状況、物件見学、内覧予約など
- 株式会社Rays
- お急ぎの方はお電話で
0985-69-6974 - 物件番号 │ 2345010009
宮崎駅東口からまっすぐ東へ1.1km徒歩約17分、車で約4分の7階建ての
建物2階です。売買・賃貸仲介を行っております。











よくある