3LDKを贅沢に2LDKへ。あえて仕切らずに叶えた開放感あふれる大空間リビング
分譲マンション
- メールで問い合わせる(無料)
- ※空室状況、物件見学、内覧予約など
- 株式会社木花リアルティ
- アルファスマート柳丸 504号室
- お急ぎの方はお電話で
0985-77-7553 - 物件番号 │ 2434010001
-
地図
-
ストリートビュー
-
動画
-
VR
※写真と現況が異なる場合は現況優先とします。
- オススメポイント
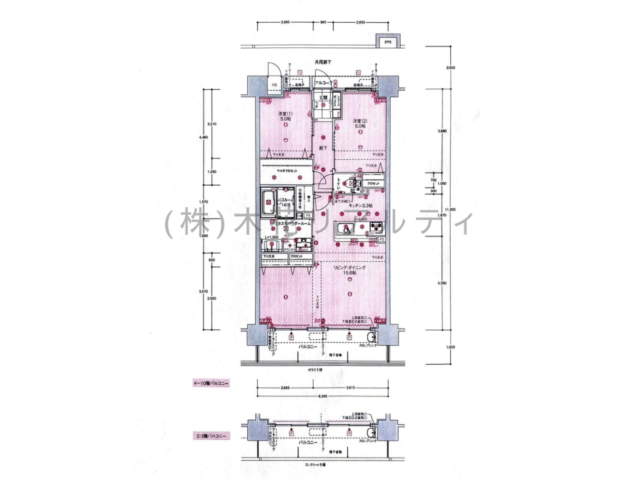
- 【アルファスマート柳丸】ゆとりある20畳超えリビングの暮らし
2023年6月に完成したばかりの「アルファスマート柳丸」5階。
本来3LDKだった間取りを、あえて贅沢な2LDKへと設計変更。近年のマンションでは珍しい「20畳超の大空間リビング」が、日常にゆとりをもたらします。
お部屋は大変丁寧に使われており、大きなリフォームをせず、そのまますぐに新生活をスタートできる状態です。利便性の高い柳丸エリアということもあり、日々の暮らしやすさは言うまでもありません。
大きな買い物だからこそ、まずは現地で暮らしのイメージを体現してください。
(株)木花リアルティ TEL:0985-77-7553
| 物件名称 | アルファスマート柳丸 504号室 | ||
|---|---|---|---|
| 所在地 | 宮崎市柳丸町20-1 | 間取り | 3LDK |
| 専有面積 | 70.2m²(21.23坪) | ベランダ面積 | |
| 総戸数/階数 | 109 / 地上10階 (エレベーター有) | 所在階 | 5階 |
| 築年月/予定日 | R5.6 / | 構造 | RC |
| 駅 | JR 宮崎駅(徒歩23分) | ||
| バス停 | 宮崎交通【権現町】(徒歩3分) | ||
| 著名施設 | フェニックスガーデンうきのじょう(道路距離403m) | ||
| スーパー | コンビニ | ||
| ドラッグストア (薬局) |
総合病院 | 1157 m (医療法人宮崎博愛会さがら病院宮崎) | |
| 公園 | 銀行 | ||
| 病院(内科) | |||
| 校区 | 宮崎市立江平小学校(1370m) / 宮崎市立宮崎東中学校(930m) | 取引態様 | 専任 |
| 管理費 | 9,600 円(税込) | 修繕積立金 | 4,300 円 |
| 駐車場 | 1台付 | 仲介手数料 | |
| 災害積立金 | 300 円 | ||
| 引渡期間/現況 | 相談 / 居住中 | ||
| 管理組合/形態 | 有 / 全部委託(日勤) | ペット | 可(小型犬) |
| 設備 | 水道(公営)ガス(都市)排水(下水)バス(専用)トイレ(専用)バス・トイレ別シャワーコンロ種別(ガス)コンロ口数(三口)システムキッチン給湯シャワー付洗面化粧台洗濯機置き場(室内)バルコニーフローリング宅配ボックス駐輪場ありバイク置き場ありタイル貼りバリアフリー温水洗浄便座デザイナーズカウンターキッチン浴室乾燥機洗面所独立クローゼット照明器具付 浴室暖房モニター付きインターホン敷地内ゴミ置場 | ||
| 投資金額 | 満室時 | ||
| 現状 | |||
| 一般備考 | |||
| PRワード | |||
| 物件更新日 | 2026年4月22日 | ||
- 宮崎の売買情報をシェアしよう!
- スマートフォンで物件情報を見る
- コードを読み取ることで、スマートフォンでもご覧頂けます。
- 宅地建物取引業 / 宮崎県知事(1)5190
- 株式会社木花リアルティ
- https://www.kibanarealty.com/
- 〒8892153 宮崎市学園木花台南3丁目29-9
- 電話番号 : 0985-77-7553 FAX番号 : 0985-77-7554
- メールで問い合わせる(無料)
- ※空室状況、物件見学、内覧予約など
- 株式会社木花リアルティ
- アルファスマート柳丸 504号室
- お急ぎの方はお電話で
0985-77-7553 - 物件番号 │ 2434010001

























よくある