クラシックデザインの店舗住宅。とても大切に手入れされてきた南欧インテリアの店舗兼用住宅です。
店舗・事務所
- メールで問い合わせる(無料)
- ※空室状況、物件見学、内覧予約など
- 株式会社木花リアルティ
- お急ぎの方はお電話で
0985-77-7553 - 物件番号 │ 2435010001
※写真と現況が異なる場合は現況優先とします。
- オススメポイント
- ■136坪ある駐車12台分可能な広い敷地です。
■周辺にはおしゃれな店や別荘が共存するリゾートエリアになります。
■建物はツーバイフォーで建てられた耐久性・耐震性・高断熱に優れた建築です。2002年築でとても大切に手入れされてきた程度良好な建物。インテリアも本格的な南欧デザインです。(外壁)塗り壁(内装壁)漆喰・塗装壁(フロア)天然木・テラコッタタイル。)
こだわりの輸入家具・厨房機器類も必要でしたら引き継ぎ可能です。
■シーガイヤリゾートやイオン宮崎との相乗効果も狙えます。
■宮崎駅行きのバス停まですぐなので便利です。
| 所在地 | 宮崎市新別府町前浜1401-110 | ||
|---|---|---|---|
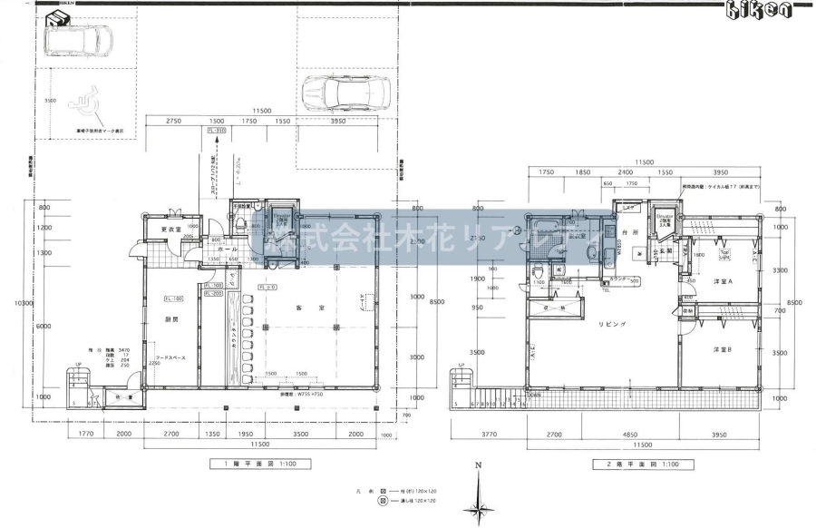
| 間取り/階数 | 6SLDK(1F:店舗 厨房 2F:居宅 4SLDK) / 地上2階 (エレベーター有) | ||
| 総戸数 | 1 | 事務所戸数 | |
| 土地面積 | 450m²(136.12坪) | 建物延面積 | 201.28m²(60.88坪) |
| 私道面積 | 1戸の専有面積 | ||
| 築年月 | H14.7 | 構造/屋根 | 木造 / 瓦葺き |
| 用途地域 | 無指定 | ||
| 地目 | 宅地 | 都市計画 | 調整 |
| 土地権利 | 所有権 | セットバック | 無 |
| 容積率 | 200% | 建ぺい率 | 70% |
| 駅 | JR 宮崎駅(徒歩50分) | ||
| バス停 | 宮崎交通(公園道路入り口)(徒歩4分) | ||
| 著名施設 | イオンモール宮崎(道路距離1300m) | ||
| スーパー | コンビニ | 890 m (ローソン 宮崎阿波岐原町店) | |
| ドラッグストア (薬局) |
990 m (ドラッグストアコスモス 新別府店) | 総合病院 | 1280 m (宮崎善仁会病院) |
| 公園 | 350 m (前浜2号緑地広場) | 銀行 | 1170 m (イオン銀行 イオンのほけん相談 イオンモール宮崎店) |
| 病院(内科) | |||
| 校区 | 宮崎市立檍北小学校(1170m) / 宮崎市立檍中学校(1700m) | 取引態様 | 専任 |
| 駐車場 | 12台付 | 仲介手数料 | |
| 接道1(向/幅) | 北 | 接道2(向/幅) | |
| 引渡期間/現況 | 相談 / 居住中 | ||
| 設備 | 水道(公営)ガス(プロパン)排水(浄化槽)バス(専用)トイレ(専用)シャワーコンロ種別(ガス)コンロ口数(四口以上)システムキッチン給湯シャワー付洗面化粧台冷暖房(エアコン)トランクルーム床下収納ウォークインクローゼット洗濯機置き場(室内)BSアンテナバルコニーフローリング冷蔵庫あり駐輪場ありバイク置き場ありTVドアホン二世帯住宅デザイナーズカウンターキッチン浴室乾燥機耐震構造家具・家電付洗面所独立浴室1.6x2.0m以上食器洗い乾燥機全居室収納クローゼットシューズボックスシューズインクローゼット照明器具付建築確認完了検査済証新築時・増改築時の設計図書修繕・点検の記録 インターホンカーポート(1台)倉庫洗面化粧台ロフトトイレ2ヵ所上水道シューズクローク厨房器具付き | ||
| 投資金額 | 満室時 | ||
| 現状 | |||
| 一般備考 | 市街化調整区域につき許認可要。 | ||
| PRワード | |||
| 物件更新日 | 2025年12月17日 | ||
- 宮崎の売買情報をシェアしよう!
- スマートフォンで物件情報を見る
- コードを読み取ることで、スマートフォンでもご覧頂けます。
- 宅地建物取引業 / 宮崎県知事(1)5190
- 株式会社木花リアルティ
- https://www.kibanarealty.com/
- 〒8892153 宮崎市学園木花台南3丁目29-9
- 電話番号 : 0985-77-7553 FAX番号 : 0985-77-7554
- メールで問い合わせる(無料)
- ※空室状況、物件見学、内覧予約など
- 株式会社木花リアルティ
- お急ぎの方はお電話で
0985-77-7553 - 物件番号 │ 2435010001























よくある