車で5分以内に図書館・便利なお店が多数あり!!
戸建住宅
- メールで問い合わせる(無料)
- ※空室状況、物件見学、内覧予約など
- 株式会社カワノ
- お急ぎの方はお電話で
0985-41-5117 - 物件番号 │ 2445010013
-
地図
-
ストリートビュー
-
動画
-
VR
※写真と現況が異なる場合は現況優先とします。
- オススメポイント
- メイン通りから一本入った閑静な住宅街です♪
近隣には便利な施設が多数あり!!
◆性能:ZEH水準の高性能建売住宅
ZEH水準だからこそ受けられる制度あり♪
◆価格:土地+建物+消費税コミコミ
大坪西エリアで2,700万円台の新築住宅
●車で5分以内に図書館・便利なお店が多数あり!!
●江南病院まで約1分
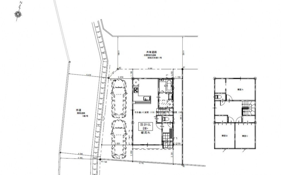
●約16.5帖の広々リビング♪
●ワクワクのフリースペースあり^^
●WICもあり収納力抜群!!
| 所在地 | 宮崎市大坪西1丁目2145-2 | ||
|---|---|---|---|
| 間取り/階数 | 3LDK / 地上2階 | ||
| 総戸数 | 事務所戸数 | ||
| 土地面積 | 109.7m²(33.18坪) | 建物延面積 | 98.74m²(29.86坪) |
| 私道面積 | 1戸の専有面積 | ||
| 築年月 | R8.1 | 構造/屋根 | 木造 / |
| 用途地域 | 第1種低層住居専用地域 | ||
| 地目 | 宅地 | 都市計画 | 市街化 |
| 土地権利 | 所有権 | セットバック | |
| 容積率 | 80% | 建ぺい率 | 50% |
| 駅 | JR 南宮崎駅(徒歩24分) | ||
| バス停 | |||
| 著名施設 | |||
| スーパー | 760 m (コープみやざき かおる坂店) | コンビニ | 250 m (ファミリーマート 大坪西店) |
| ドラッグストア (薬局) |
300 m (ドラッグストア マツモトキヨシ 大坪店) | 総合病院 | 170 m (JCHO宮崎江南病院) |
| 公園 | 140 m (大坪西緑地広場) | 銀行 | |
| 病院(内科) | |||
| 校区 | 宮崎市立大淀小学校(1910m) / 宮崎市立大淀中学校(1600m) | 取引態様 | 仲介 |
| 駐車場 | 2台付 | 仲介手数料 | |
| 接道1(向/幅) | 西 / 5.0m | 接道2(向/幅) | 北 / 4.0m |
| 引渡期間/現況 | 即時 / | ||
| 設備 | 水道(公営)排水(下水)バス(専用)トイレ(専用)バス・トイレ別シャワー給湯シャワー付洗面化粧台ウォークインクローゼット洗濯機置き場(室内)バルコニーバリアフリー温水洗浄便座浴室乾燥機洗面所独立クローゼット | ||
| 投資金額 | 満室時 | ||
| 現状 | |||
| 一般備考 | |||
| PRワード | |||
| 物件更新日 | 2026年1月22日 | ||
- 宮崎の売買情報をシェアしよう!
- スマートフォンで物件情報を見る
- コードを読み取ることで、スマートフォンでもご覧頂けます。
- 宅地建物取引業 / 宮崎県知事(1)5156
- 株式会社カワノ
- https://kawano.i-e.jp/
- 〒8800825 宮崎市東大宮2丁目1番8号
- 電話番号 : 0985-41-5117 FAX番号 : 0985-24-9180
- メールで問い合わせる(無料)
- ※空室状況、物件見学、内覧予約など
- 株式会社カワノ
- お急ぎの方はお電話で
0985-41-5117 - 物件番号 │ 2445010013










よくある