新築の平屋の貸家がでました。オシャレな外観、広々とした住居スペース、自分に合ったライフスタイル見つけてみませんか?
貸家
- メールで問い合わせる(無料)
- ※空室状況、物件見学、内覧予約など
- (株)トータルホームズ
- 清武今泉貸家
- お急ぎの方はお電話で
0985-31-1399 - 物件番号 │ 0601020069
※写真と現況が異なる場合は現況優先とします。
- オススメポイント
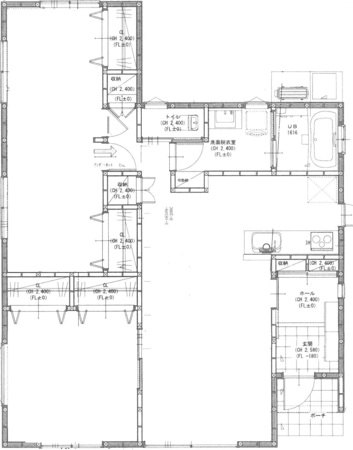
- 宮崎市清武町に新築平屋貸家が出ました!外観は黒をベースにしたオシャレな建物です。オール電化、IHコンロ3口のシステムキッチンです。トイレはウォシュレット付き、シャワー付き独立洗面台完備。収納スペースが多く、荷物も整理しやすく、使いやすい3LDKの間取りになっています。自然に囲まれた静かな住宅街にあります。駐車場は縦列駐車で2台駐車出来ます。
| 物件名称 | 清武今泉貸家 | ||
|---|---|---|---|
| 所在地 | 宮崎市清武町今泉甲793-3 | ||
| 間取り | 3LDK(LDK19.8帖 洋8帖 洋6帖 洋6帖) | 部屋向き | 南 |
| 専有面積 | 89.43m²(27.05坪) | ベランダ面積 | |
| 構造/階数 | 木造 / 地上1階 | 所在階 | 1階 |
| 築年月日 | R7.9 | ||
| 駅 | JR 清武駅(徒歩27分) | ||
| バス停 | 岡(徒歩10分) | ||
| 著名施設 | |||
| スーパー | コンビニ | 860 m (ファミリーマート 清武今泉店) | |
| ドラッグストア (薬局) |
780 m ((有)クスリのしのだ) | 総合病院 | |
| 公園 | 510 m (宮崎市) | 銀行 | |
| 病院(内科) | |||
| 校区 | 宮崎市立清武小学校(1240m) / 宮崎市立清武中学校(960m) | ペット | 不可 |
| 共益費 | 0 円 | 駐車場 | 2台付 |
| 敷金 | 0 円 | 礼金 | 138,000 円 |
| 家賃保証料 | 有 69,275 円 | 衛生管理費 | 550 円 |
| 保険料 | 有 20,000 円 2 年 | 仲介手数料 | 151,800 円 (借主負担:100%) |
| 契約形態 | 普通型 | 現況 | 空き |
| 引渡期間 | 相談 | 取引態様 | 専任 |
| 設備 | 水道(公営)排水(浄化槽)バス(専用)トイレ(専用)バス・トイレ別シャワーコンロ種別(IH)コンロ口数(三口)システムキッチン給湯追焚機能シャワー付洗面化粧台ウォークインクローゼット洗濯機置き場(室内)専用庭フローリング駐輪場ありバイク置き場ありTVドアホン温水洗浄便座オール電化カウンターキッチン洗面所独立全居室収納シューズボックス照明器具付 ウォシュレット洗面化粧台シャンプードレッサー上水道流し台トイレシャワールーム浴室 | ||
| 通信回線備考 | |||
| 一般備考 | 宮崎市清武町に新築平屋貸家が出ました!外観は黒をベースにしたオシャレな建物です。オール電化、IHコンロ3口のシステムキッチンです。トイレはウォシュレット付き、シャワー付き独立洗面台完備。収納スペースが多く、荷物も整理しやすく、使いやすい3LDKの間取りになっています。自然に囲まれた静かな住宅街にあります。駐車場は縦列駐車で2台駐車出来ます。 | ||
| PRワード | 設備完備専用庭平屋収納広々 | ||
| 物件更新日 | 2026年1月30日 | ||
- 宮崎の賃貸情報をシェアしよう!
- スマートフォンで物件情報を見る
- コードを読み取ることで、スマートフォンでもご覧頂けます。
- 宅地建物取引業 / 宮崎県知事(4)4556
- (株)トータルホームズ
- http://www.totalhomes.jp
- 〒8800841 宮崎市吉村町江田原甲208-21
- 電話番号 : 0985-31-1399 FAX番号 : 0985-83-4227
- メールで問い合わせる(無料)
- ※空室状況、物件見学、内覧予約など
- (株)トータルホームズ
- 清武今泉貸家
- お急ぎの方はお電話で
0985-31-1399 - 物件番号 │ 0601020069
こんにちは!地域に密着した宮崎の不動産会社へようこそ!イオン宮崎・宮崎駅・フェニックスガーデン周辺など不動産物件情報満載です。
また、不動産の売却(土地や建物)のご相談も承ります。もちろん査定は無料です。お気軽にお問い合わせ下さい!!























よくある