12/26退去予定の人気物件!築浅2LDKデザイナーズ賃貸です。
アパート・マンション
- メールで問い合わせる(無料)
- ※空室状況、物件見学、内覧予約など
- 株式会社aroot
- アーベイン永楽 302号室
- お急ぎの方はお電話で
0985-41-5720 - 物件番号 │ 1921012817
-
地図
-
ストリートビュー
-
動画
-
VR
※写真と現況が異なる場合は現況優先とします。
- オススメポイント
- ついちょるーむ(Wifiインターネット無料・鹿児島放送無料)宮崎駅徒歩圏内
| 物件名称 | アーベイン永楽 302号室 | ||
|---|---|---|---|
| 所在地 | 宮崎市永楽町183-1 | ||
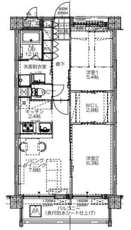
| 間取り | 2LDK(LDK10.2 洋室6.3 洋室5.4) | 部屋向き | 南 |
| 専有面積 | 52.89m²(15.99坪) | ベランダ面積 | |
| 構造/階数 | RC / 地上4階 | 所在階 | 3階 |
| 築年月日 | R2.2 | ||
| 駅 | JR 宮崎駅(徒歩16分) | ||
| バス停 | |||
| 著名施設 | |||
| スーパー | コンビニ | ||
| ドラッグストア (薬局) |
総合病院 | ||
| 公園 | 銀行 | ||
| 病院(内科) | |||
| 校区 | ペット | 不可 | |
| 共益費 | 2,000 円(税込) | 駐車場 | 4,000 円 |
| 敷金 | 0 円 | 礼金 | 74,000 円(税込) |
| 家賃保証料 | 有 | 衛生管理費 | 550 円 |
| 保険料 | 有 21,500 円 2 年 | 仲介手数料 | 81,400 円 (借主負担:100%) |
| 契約形態 | 普通型 | 現況 | 賃貸中 |
| 引渡期間 | R8年1月 | 取引態様 | 仲介 |
| 設備 | 二人入居(可)水道(公営)ガス(プロパン)排水(下水)バス(専用)トイレ(専用)バス・トイレ別シャワーコンロ種別(ガス)シャワー付洗面化粧台冷暖房(エアコン)ウォークインクローゼット洗濯機置き場(室内)オートロックバルコニーフローリング宅配ボックス駐輪場ありバイク置き場あり角部屋TVドアホン温水洗浄便座デザイナーズカウンターキッチン浴室乾燥機洗面所独立インターネット使用料無料全居室収納シューズインクローゼット ウォシュレット洗面化粧台シャンプードレッサー ついちょるーむ | ||
| 通信回線備考 | |||
| 一般備考 | 写真の間取り反転タイプになります | ||
| PRワード | デザイナーズ築浅ウォークインクローゼット宅配ボックスネット無料 | ||
| 物件更新日 | 2025年12月15日 | ||
- 宮崎の賃貸情報をシェアしよう!
- スマートフォンで物件情報を見る
- コードを読み取ることで、スマートフォンでもご覧頂けます。
- 宅地建物取引業 / 宮崎県知事(2)4935
- 株式会社aroot
- https://www.aroot-miyazaki.com/
- 〒8800845 宮崎市新城町21第1新庄荘1F東
- 電話番号 : 0985-41-5720 FAX番号 : 0985-41-5721
- メールで問い合わせる(無料)
- ※空室状況、物件見学、内覧予約など
- 株式会社aroot
- アーベイン永楽 302号室
- お急ぎの方はお電話で
0985-41-5720 - 物件番号 │ 1921012817































よくある