掲載日2026年03月23日
人気の高台(江南団地内)新築物件!
※写真と現況が異なる場合は現況優先とします。
-
株式会社 宮崎南不動産 本店
お急ぎの方はお電話で
0985-52-0622
物件番号 | 1135010533
- オススメポイント
- ※人気の高台(江南団地内)新築物件!
※4LDK、駐車場3台可能
※1階:シューズ・イン・クローゼット
※2階:ウォーク・イン・クローゼット設備あり
※2026年5月中旬完成予定
※強い耐震性、耐久性♪長期優良住宅♪
基本情報
- 所在地
- 宮崎市江南
金額 3,690 万円(税込)
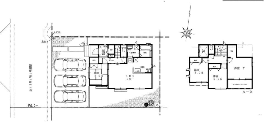
間取り 4LDK
詳細情報
| 所在地 | 宮崎市江南1丁目159(宮崎南不動産) |
|---|---|
| 間取り/階数 | 4LDK(1階・・LDK16帖、和:5.25畳、2階・・洋:5.25帖、洋:5.25帖、洋:7帖) / 地上2階 |
| 総戸数 | |
| 事務所戸数 | |
| 土地面積 | 161.56m²(48.87坪) |
| 建物延面積 | 95.64m²(28.93坪) |
| 私道面積 | |
| 1戸の専有面積 | |
| 築年月 | R8.5 |
| 構造/屋根 | 木造 / 鋼板葺き |
| 用途地域 | 第1種低層住居専用地域 |
| 地目 | 宅地 |
| 都市計画 | 市街化 |
| 土地権利 | 所有権 |
| セットバック | 無 |
| 容積率 | 60% |
| 建ぺい率 | 40% |
| 駅 | JR 南宮崎駅(徒歩41分) |
| バス停 | |
| 著名施設 | |
| 校区 | 宮崎市立江南小学校(710m) / 宮崎市立大塚中学校(2120m) |
| 取引態様 | 一般媒介 |
| 駐車場 | 3台付 |
| 仲介手数料 | |
| 接道1(向/幅) | 西 / 6.0m |
| 接道2(向/幅) | |
| 引渡期間/現況 | R8年5月 / 未完成 |
| 設備 | 水道(公営) / ガス(都市) / 排水(下水) / バス(専用) / トイレ(専用) / バス・トイレ別 / システムキッチン / 追焚機能 / シャワー付洗面化粧台 / ウォークインクローゼット / バルコニー / フローリング / 温水洗浄便座 / カウンターキッチン / シューズインクローゼット |
| 投資金額 | |
| 満室時 | |
| 現状 | |
| 一般備考 | ※網戸、一部照明、一部シャッター、カーテンレール、TVアンテナ、門柱門扉などは含まれておりません。 ※外構は実際とは異なる場合があります。 |
| PRワード | |
| 物件更新日 | 2026年3月23日 |
-
株式会社 宮崎南不動産 本店
〒8800902 宮崎市大淀3丁目5-6
電話番号:
0985-52-0622
物件番号 | 1135010533




