通勤・通学にとっても便利です
※写真と現況が異なる場合は現況優先とします。
-
大塚不動産株式会社
お急ぎの方はお電話で
0985-51-5566
物件番号 | 0185010190
- オススメポイント
- 平和台大橋すぐ近くで通勤・通学にとっても便利です
周辺は住宅街で生活しやすい環境です
各部屋に掃出窓があり、日当たり、風通しも良いです
玄関横には雨の日でも安心して乗り降りできるカーポート付きです
基本情報
- 所在地
- 宮崎市大字小松
金額 1,180 万円
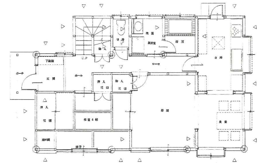
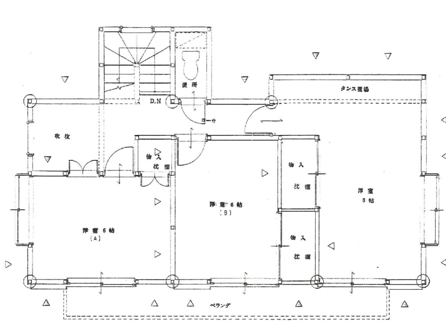
間取り 5K
詳細情報
| 所在地 | 宮崎市大字小松186-8 |
|---|---|
| 間取り/階数 | 5K / 地上2階 |
| 総戸数 | |
| 事務所戸数 | |
| 土地面積 | 165.3m²(50坪) |
| 建物延面積 | 109.96m²(33.26坪) |
| 私道面積 | |
| 1戸の専有面積 | |
| 築年月 | H3.4 |
| 構造/屋根 | 木造 / 瓦葺き |
| 用途地域 | 第1種低層住居専用地域 |
| 地目 | 宅地 |
| 都市計画 | |
| 土地権利 | 所有権 |
| セットバック | |
| 容積率 | 80% |
| 建ぺい率 | 50% |
| 駅 | |
| バス停 | 高松バス停(徒歩4分) |
| 著名施設 | |
| スーパー | |
| コンビニ | 480 m (ファミリーマート 小松バイパス店) |
| ドラッグストア (薬局) |
400 m (ドラッグイレブン 小松店) |
| 総合病院 | 500 m (潤和会記念病院) |
| 公園 | |
| 銀行 | |
| 病院(内科) | |
| 校区 | 宮崎市立小松台小学校(1680m) / 宮崎市立生目中学校(2670m) |
| 取引態様 | 一般媒介 |
| 駐車場 | 2台付 |
| 仲介手数料 | 455,400 円 |
| 接道1(向/幅) | 西 |
| 接道2(向/幅) | |
| 引渡期間/現況 | 即時 / 空き |
| 設備 | 水道(公営) / 排水(下水) / バス(専用) / トイレ(専用) / バス・トイレ別 / 洗濯機置き場(有) / フローリング / 温水洗浄便座 / カーポート(2台) |
| 投資金額 | |
| 満室時 | |
| 現状 | |
| 一般備考 | |
| PRワード | 駐車場2台 / 南向き / カーポート付き |
| 物件更新日 | 2025年8月3日 |
-
大塚不動産株式会社
〒8800951 宮崎市大塚町城ノ下2770-3長友コーポ103
電話番号:
0985-51-5566
物件番号 | 0185010190

















