※写真と現況が異なる場合は現況優先とします。
-
株式会社ハウザーライフ
お急ぎの方はお電話で
0985-62-1711
物件番号 | 0775010486
基本情報
- 所在地
- 宮崎市大字恒久
金額 2,950 万円
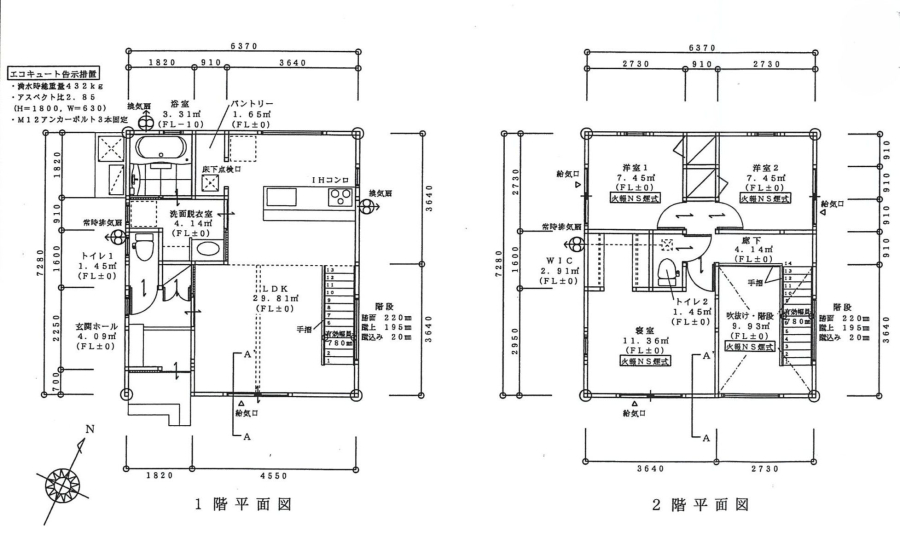
間取り 3LDK
詳細情報
| 所在地 | 宮崎市大字恒久4258-1 |
|---|---|
| 間取り/階数 | 3LDK / 地上2階 |
| 総戸数 | 1 |
| 事務所戸数 | |
| 土地面積 | 105m²(31.76坪) |
| 建物延面積 | 81.69m²(24.71坪) |
| 私道面積 | |
| 1戸の専有面積 | |
| 築年月 | R7.10 |
| 構造/屋根 | 木造 / 鋼板葺き |
| 用途地域 | 第2種住居地域 |
| 地目 | 宅地 |
| 都市計画 | 市街化 |
| 土地権利 | 所有権 |
| セットバック | 無 |
| 容積率 | 200% |
| 建ぺい率 | 70% |
| 駅 | JR 南宮崎駅(徒歩15分) |
| バス停 | 鵬翔高校前(徒歩2分) |
| 著名施設 | |
| スーパー | 700 m (業務スーパー 南宮崎店) |
| コンビニ | 550 m (ローソン 宮崎大淀四丁目店) |
| ドラッグストア (薬局) |
140 m (ドラッグストアモリ 恒久店) |
| 総合病院 | 1575 m (誠友会南部病院) |
| 公園 | |
| 銀行 | 370 m (鹿児島銀行 南宮崎支店) |
| 病院(内科) | |
| 校区 | 宮崎市立恒久小学校(1470m)、宮崎市立大淀小学校(1580m) / 宮崎市立赤江中学校(1690m) |
| 取引態様 | 一般媒介 |
| 駐車場 | 3台付 |
| 仲介手数料 | |
| 接道1(向/幅) | 西 / 4.8m |
| 接道2(向/幅) | 南 / 5.8m |
| 引渡期間/現況 | 即時 / 空き |
| 設備 | 水道(公営) / ガス(その他) / 排水(下水) / TVドアホン / バリアフリー / オール電化 / 上水道 / エコキュート |
| 投資金額 | |
| 満室時 | |
| 現状 | |
| 一般備考 | 南西角地で陽当たり良好です!駐車並列3台可です! 生活利便性の良い立地です! |
| PRワード | |
| 物件更新日 | 2025年11月23日 |
-
株式会社ハウザーライフ
〒8800804 宮崎市宮田町12番12号
電話番号:
0985-62-1711
物件番号 | 0775010486






















