大淀小校区3LDKの新築建売♪
※写真と現況が異なる場合は現況優先とします。
-
有限会社 三門商事
お急ぎの方はお電話で
0985-51-5002
物件番号 | 1005010055
- オススメポイント
- ★大淀小学校・中学校エリア
★コンビニ、ドラッグストアまで徒歩5分圏内
★ウッドデッキ
★オール電化
★対面式キッチン
基本情報
- 所在地
- 宮崎市大坪町
金額 3,985 万円(税込)
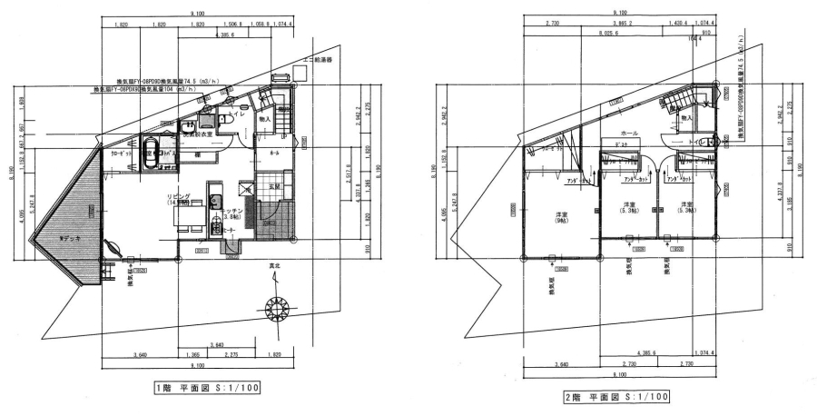
間取り 3LDK
詳細情報
| 所在地 | 宮崎市大坪町2189-2 |
|---|---|
| 間取り/階数 | 3LDK / 地上2階 |
| 総戸数 | |
| 事務所戸数 | |
| 土地面積 | 140.91m²(42.62坪) |
| 建物延面積 | 111.58m²(33.75坪) |
| 私道面積 | |
| 1戸の専有面積 | |
| 築年月 | R7.12 |
| 構造/屋根 | 木造 / 鋼板葺き |
| 用途地域 | 第2種住居地域 |
| 地目 | 宅地 |
| 都市計画 | 市街化 |
| 土地権利 | 所有権 |
| セットバック | 無 |
| 容積率 | 200% |
| 建ぺい率 | 60% |
| 駅 | |
| バス停 | 江南病院前(徒歩1分) |
| 著名施設 | 宮崎市民文化ホール(道路距離1100m) |
| スーパー | 540 m (コープみやざき かおる坂店) |
| コンビニ | 210 m (ファミリーマート 大坪西店) |
| ドラッグストア (薬局) |
200 m (ドラッグストア マツモトキヨシ 大坪店) |
| 総合病院 | 10 m (宮崎江南病院) |
| 公園 | |
| 銀行 | |
| 病院(内科) | |
| 校区 | 宮崎市立大淀小学校(1800m) / 宮崎市立大淀中学校(1490m) |
| 取引態様 | 一般媒介 |
| 駐車場 | 駐車場なし |
| 仲介手数料 | |
| 接道1(向/幅) | 東 / 5.6m |
| 接道2(向/幅) | |
| 引渡期間/現況 | 相談 / 空き |
| 設備 | 水道(公営) / 排水(下水) / コンロ種別(IH) / コンロ口数(三口) / 冷暖房(エアコン) / 洗濯機置き場(室内) / オール電化 / 食器洗い乾燥機 / 瑕疵保険(国交省指定)(付) |
| 投資金額 | |
| 満室時 | |
| 現状 | |
| 一般備考 | |
| PRワード | |
| 物件更新日 | 2026年1月26日 |
-
有限会社 三門商事
〒8800936 宮崎市天満1丁目5番14号
電話番号:
0985-51-5002
物件番号 | 1005010055
























