【築5年/高層階角部屋/駐車場2台可能/ペット可/3LDK/買い物施設充実/インターネット使い放題】
※写真と現況が異なる場合は現況優先とします。
-
株式会社ボンズ・ジャパン
お急ぎの方はお電話で
0985-65-8300
レクシア宮崎駅プレジア 901
物件番号 | 1844010044
- オススメポイント
- 〇高層階南西角住戸のため眺望良好
〇近隣月極駐車場確保(徒歩2分)
〇食洗器・浴室乾燥機・追い炊き機能など充実設備
〇一括受電システム導入し電気代を抑えられます
〇エコジョーズや複層ガラス採用している省エネ住宅
〇ペット飼育可(ペット専用足洗い場あり)
■新築時オプション
〇アクセントクロスを玄関・リビングに設置
〇トイレ・リビング入口にエコカラット設置
〇トイレをタンクレストイレに変更
〇フローリングをはがれにくいEIDAIに変更
〇洗面所・トイレの床をクッションフロアに変更
〇シューズインクローゼットへ間取り変更
〇ダウンライト増設
居住中ですが、内覧可能ですので、お気軽にお問い合わせ下さい。
基本情報
- 物件名称
- レクシア宮崎駅プレジア 901
- 所在地
- 宮崎市宮崎駅東
金額 3,980 万円(税込)
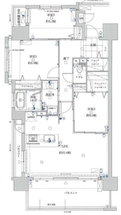
間取り 3LDK
詳細情報
| 所在地 | 宮崎市宮崎駅東3丁目8-2 |
|---|---|
| 間取り | 3LDK |
| 専有面積 | 78.42m²(23.72坪) |
| ベランダ面積 | |
| 総戸数/階数 | 44 / 地上12階 |
| 所在階 | 9階 |
| 築年月/予定日 | R2.11 / |
| 構造 | RC |
| 駅 | JR 宮崎駅(徒歩7分) |
| バス停 | |
| 著名施設 | |
| スーパー | 220 m (Foodaly 青葉店) |
| コンビニ | 370 m (セブン-イレブン 宮崎青葉町店) |
| ドラッグストア (薬局) |
170 m (くすりのPAL ナカシマ マックスバリュ店) |
| 総合病院 | 380 m (さがら病院宮崎) |
| 公園 | 390 m (下原街区公園) |
| 銀行 | 340 m (宮崎太陽銀行 青葉町支店) |
| 病院(内科) | |
| 校区 | 宮崎市立江平小学校(1380m) / 宮崎市立宮崎東中学校(1630m) |
| 取引態様 | 専属専任 |
| 管理費 | 14,900 円 |
| 修繕積立金 | 8,700 円 |
| 駐車場 | 1台付 |
| 仲介手数料 | |
| 引渡期間/現況 | 即時 / |
| 管理組合/形態 | 有 / 全部委託 |
| ペット | 可 |
| 設備 | 水道(公営) / ガス(都市) / 排水(下水) / バス(専用) / トイレ(専用) / バス・トイレ別 / シャワー / コンロ種別(ガス) / コンロ口数(三口) / システムキッチン / 給湯 / 追焚機能 / シャワー付洗面化粧台 / 洗濯機置き場(室内) / CATV / CSアンテナ / BSアンテナ / オートロック / バルコニー / フローリング / 駐輪場あり / バイク置き場あり / INTERNET対応(その他インターネット) / 角部屋 / TVドアホン / カウンターキッチン / 浴室乾燥機 / 洗面所独立 / 食器洗い乾燥機 / 全居室収納 / クローゼット / シューズインクローゼット / オートバス / 浴室暖房 / モニター付きインターホン / 敷地内ゴミ置場 |
| 投資金額 | |
| 満室時 | |
| 現状 | |
| 一般備考 | 【弊社の特徴】 ・お客様専用URLの「マイページ」を作成致します。 【マイページ 3つの主な機能】 ①物件資料:図面に加えて、価格や面積などの主要情報が一目で確認可能です。 ②物件マップ:物件の位置や周辺施設を地図上で確認できます。近隣のスーパー、病院、ハザードマップなどが一目で分かります。 ③内見予約: 簡単な操作で内見予約ができ、手続きがスムーズに進められます。 |
| PRワード | |
| 物件更新日 | 2026年2月19日 |
-
株式会社ボンズ・ジャパン
〒8800805 宮崎市橘通東3丁目6番19号EST2ビル6階
電話番号:
0985-65-8300
レクシア宮崎駅プレジア 901
物件番号 | 1844010044
































