【4LDK/86m2/東南角部屋/駐車場平置き/宅配BOX/2025年大規模修繕施工済】
※写真と現況が異なる場合は現況優先とします。
-
株式会社ボンズ・ジャパン
お急ぎの方はお電話で
0985-65-8300
サーパス大橋南
物件番号 | 1844010050
- オススメポイント
- 【特徴】
〇近隣にコンビニやドラッグストアや飲食店がある便利なエリア
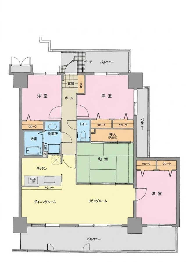
〇86㎡以上の広々とした4LDK
〇東南角部屋で、南向と東向きの2面バルコニー
〇各居室クローゼットがあり、収納スペースが十分あります
〇エントランスに宅配ボックスあり便利です
〇オートロックやエレベーターに防犯カメラ採用しているため安心して生活できます
〇2025年に2回目の大規模修繕工事をしているため、共用部分も築年数を感じずキレイです
〇駐車場は平置き。2年に1回抽選で、次回は2027年6月予定。
〇エントランスにAEDあり
〇敷地内にプレイロットあり
居住中ですが、内覧調整致しますので、お気軽にお問合せ下さい!
基本情報
- 物件名称
- サーパス大橋南
- 所在地
- 宮崎市大工
金額 1,980 万円
間取り 4LDK
詳細情報
| 所在地 | 宮崎市大工2丁目174 |
|---|---|
| 間取り | 4LDK |
| 専有面積 | 86.14m²(26.05坪) |
| ベランダ面積 | |
| 総戸数/階数 | 63 / 地上10階 |
| 所在階 | 2階 |
| 築年月/予定日 | H7.3 / |
| 構造 | RC |
| 駅 | JR 宮崎駅(徒歩29分) |
| バス停 | 大橋3丁目(徒歩1分) |
| 著名施設 | |
| スーパー | |
| コンビニ | 190 m (ローソン 宮崎大橋三丁目店) |
| ドラッグストア (薬局) |
160 m (ドラッグイレブン 宮崎大橋店) |
| 総合病院 | 680 m (医療法人 幸秀会 大江整形外科病院) |
| 公園 | 270 m (上水流街区公園) |
| 銀行 | 310 m (宮崎太陽銀行 大工町支店) |
| 病院(内科) | |
| 校区 | 宮崎市立小戸小学校(620m) / 宮崎市立宮崎西中学校(1430m) |
| 取引態様 | 一般媒介 |
| 管理費 | 9,000 円 |
| 修繕積立金 | 14,600 円 |
| 駐車場 | 9,500 円 |
| 仲介手数料 | |
| 引渡期間/現況 | 相談 / 居住中 |
| 管理組合/形態 | 有 / 全部委託(日勤) |
| ペット | 不可 |
| 設備 | 水道(公営) / ガス(都市) / 排水(下水) / バス(専用) / トイレ(専用) / バス・トイレ別 / システムキッチン / 洗濯機置き場(室内) / オートロック / 駐輪場あり / バイク置き場あり / 角部屋 / カウンターキッチン / 防犯カメラ / 全居室収納 / シューズボックス |
| 投資金額 | |
| 満室時 | |
| 現状 | |
| 一般備考 | |
| PRワード | |
| 物件更新日 | 2026年4月27日 |
-
株式会社ボンズ・ジャパン
〒8800805 宮崎市橘通東3丁目6番19号EST2ビル6階
電話番号:
0985-65-8300
サーパス大橋南
物件番号 | 1844010050



















