宮崎市清武町加納エリア 高台 平屋造り
※写真と現況が異なる場合は現況優先とします。
-
株式会社 ホームプランナー
お急ぎの方はお電話で
0985-41-8786
物件番号 | 2025010554
- オススメポイント
- 2015年9月築のオール電化平屋住宅。
基本情報
- 所在地
- 宮崎市清武町
金額 2,900 万円
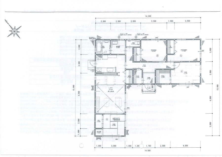
間取り 4LDK
詳細情報
| 所在地 | 宮崎市清武町加納乙582-40 |
|---|---|
| 間取り/階数 | 4LDK / 地上1階 |
| 総戸数 | |
| 事務所戸数 | |
| 土地面積 | 343.34m²(103.86坪) |
| 建物延面積 | 112m²(33.87坪) |
| 私道面積 | |
| 1戸の専有面積 | |
| 築年月 | H27.9 |
| 構造/屋根 | 木造 / |
| 用途地域 | 第2種中高層住居専用地域 |
| 地目 | 宅地 |
| 都市計画 | 市街化 |
| 土地権利 | 所有権 |
| セットバック | |
| 容積率 | 200% |
| 建ぺい率 | 60% |
| 駅 | |
| バス停 | 迫分(徒歩12分) |
| 著名施設 | |
| スーパー | 1110 m (スーパーセンタートライアル加納店) |
| コンビニ | |
| ドラッグストア (薬局) |
|
| 総合病院 | |
| 公園 | 530 m (宮崎市) |
| 銀行 | 1230 m (宮崎銀行 加納支店) |
| 病院(内科) | |
| 校区 | 宮崎市立加納小学校(2170m) / 宮崎市立加納中学校(670m) |
| 取引態様 | 一般媒介 |
| 駐車場 | 3台付 |
| 仲介手数料 | |
| 接道1(向/幅) | |
| 接道2(向/幅) | |
| 引渡期間/現況 | 相談 / 居住中 |
| 設備 | 水道(公営) / 排水(下水) / バス(専用) / トイレ(専用) / バス・トイレ別 / シャワー / コンロ種別(IH) / コンロ口数(三口) / システムキッチン / 給湯 / 追焚機能 / シャワー付洗面化粧台 / ウォークインクローゼット / 洗濯機置き場(室内) / フローリング / TVドアホン / 温水洗浄便座 / オール電化 / カウンターキッチン / 洗面所独立 / 浴室1.6x2.0m以上 / クローゼット / シューズボックス / インターホン / カーポート(2台) / 倉庫 / 洗面化粧台 / 上水道 / エコキュート / 平屋 |
| 投資金額 | |
| 満室時 | |
| 現状 | |
| 一般備考 | 敷地内一部イエローゾーン 敷地内電柱有 |
| PRワード | 平屋 / 高台 / オール電化 |
| 物件更新日 | 2025年12月16日 |
-
株式会社 ホームプランナー
〒880-000 宮崎市高松町1-8
電話番号:
0985-41-8786
物件番号 | 2025010554
















