国道10号線沿いの築8年の店舗・事務所です!
※写真と現況が異なる場合は現況優先とします。
-
株式会社Map.N
お急ぎの方はお電話で
0985-77-6570
物件番号 | 2085020001
- オススメポイント
- 交通量の多い国道15線沿いの路面店です。
駐車場は縦列です。
駐車場は8台のうち6台が使用中のため、
空区画は2区画です。
美容系のサロンの他、飲食店など多種多様な業種にオススメです。
詳細はぜひお気軽にお問い合わせください。
基本情報
- 所在地
- 宮崎市神宮東
金額 3,800 万円(税込)
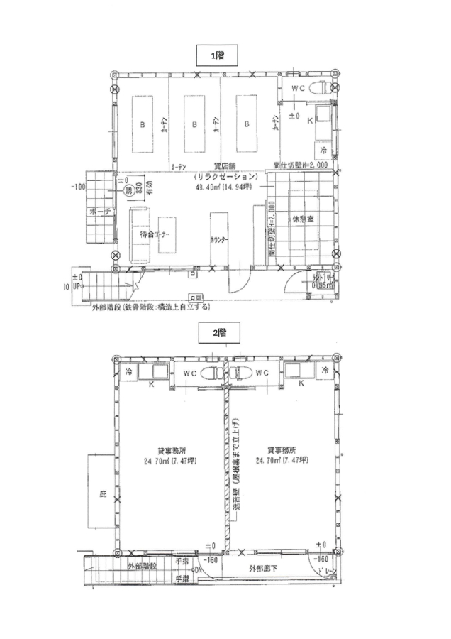
間取り その他
詳細情報
| 所在地 | 宮崎市神宮東1丁目16-1 |
|---|---|
| 間取り/階数 | その他 / 地上2階 |
| 総戸数 | 3 |
| 事務所戸数 | 3 |
| 土地面積 | 214.64m²(64.92坪) |
| 建物延面積 | 99.75m²(30.17坪) |
| 私道面積 | |
| 1戸の専有面積 | 最小24.7 ㎡ 最大49.4 ㎡ |
| 築年月 | H29.9 |
| 構造/屋根 | 木造 / |
| 用途地域 | 近隣商業地域 |
| 地目 | 宅地 |
| 都市計画 | 市街化 |
| 土地権利 | 所有権 |
| セットバック | 無 |
| 容積率 | 300% |
| 建ぺい率 | 80% |
| 駅 | JR 宮崎神宮駅(徒歩8分) |
| バス停 | 神宮東(徒歩2分) |
| 著名施設 | |
| スーパー | 130 m (ドン・キホーテ) |
| コンビニ | 460 m (セブン-イレブン 宮崎神宮東3丁目店) |
| ドラッグストア (薬局) |
970 m (ドラッグストアコスモス 柳丸店) |
| 総合病院 | |
| 公園 | 1100 m (JRA宮崎育成牧場) |
| 銀行 | 160 m (高鍋信用金庫 宮崎北支店) |
| 病院(内科) | |
| 校区 | 宮崎市立江平小学校(1480m) / 宮崎市立宮崎東中学校(1750m) |
| 取引態様 | 専任 |
| 駐車場 | 8台付 |
| 仲介手数料 | 1,320,000 円 |
| 接道1(向/幅) | 西 |
| 接道2(向/幅) | |
| 引渡期間/現況 | 相談 / 賃貸中 |
| 設備 | 水道(公営) / 排水(下水) / トイレ(専用) |
| 投資金額 | 3,800 万円 |
| 満室時 | 24.4 万円 / 292.8 万円 / 7.71% |
| 現状 | 17.7 万円 / 212.4 万円 / 5.59% |
| 一般備考 | 1階(49.40㎡):11万で賃貸中(10月末退去予定) 2階西側(24.70㎡):空室 2階東側(24.70㎡):67,000円で賃貸中 |
| PRワード | 店舗・事務所 / 美容系 / 国道10号線 |
| 物件更新日 | 2025年10月23日 |
-
株式会社Map.N
〒8802112 宮崎市大字小松3261日高第一コーポ101号室
電話番号:
0985-77-6570
物件番号 | 2085020001







