前浜リゾートエリアに立地する2×4工法のクラシックデザインの店舗住宅
※写真と現況が異なる場合は現況優先とします。
-
株式会社木花リアルティ
お急ぎの方はお電話で
0985-77-7553
物件番号 | 2435010002
- オススメポイント
- イオン宮崎店の海側に隣接する『前浜エリア』 シーガイヤリゾートにも近く、おしゃれな美容室や接骨院、飲食店などが住宅と共存するエリアになります。
■土地面積は136坪あり、駐車10台以上可能です。
■建物は1階.2階共に30坪以上(延床面積60坪以上)ございます。
■2002年築(築23年)のツーバイフォー工法で建てられた強靭な構造の木造住宅です。大切にメンテナンスされていて程度良好です。
■ツーバイフォー工法+窓はすべて複層ガラスで高断熱となっております。
■本格的なクラシックデザイン 外壁は塗壁、内壁も漆喰や塗装壁、土間部分にはテラコッタタイルが施され南欧の建築を本格的に再現されてます。
基本情報
- 所在地
- 宮崎市阿波岐原町
金額 3,780 万円
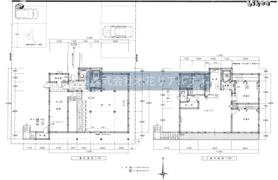
間取り 6SLDK
詳細情報
| 所在地 | 宮崎市阿波岐原町前浜1401-110 |
|---|---|
| 間取り/階数 | 6SLDK((1F)店舗、厨房(2F)リビング、寝室×2、水回り、小屋裏、ロフト) / 地上2階 (エレベーター有) |
| 総戸数 | |
| 事務所戸数 | |
| 土地面積 | 450m²(136.12坪) |
| 建物延面積 | 201.28m²(60.88坪) |
| 私道面積 | |
| 1戸の専有面積 | |
| 築年月 | H14.7 |
| 構造/屋根 | 木造 / スレート葺き |
| 用途地域 | 無指定 |
| 地目 | 宅地 |
| 都市計画 | 調整 |
| 土地権利 | 所有権 |
| セットバック | |
| 容積率 | 200% |
| 建ぺい率 | 70% |
| 駅 | JR 宮崎駅(徒歩37分) |
| バス停 | |
| 著名施設 | |
| スーパー | 2168 m (イオン宮崎店) |
| コンビニ | |
| ドラッグストア (薬局) |
|
| 総合病院 | 1724 m (医療法人社団善仁会宮崎善仁会病院) |
| 公園 | |
| 銀行 | |
| 病院(内科) | |
| 校区 | 宮崎市立檍北小学校(1100m) / 宮崎市立檍中学校(2344m) |
| 取引態様 | 専任 |
| 駐車場 | 12台付 |
| 仲介手数料 | |
| 接道1(向/幅) | 北 |
| 接道2(向/幅) | |
| 引渡期間/現況 | 相談 / 居住中 |
| 設備 | 水道(公営) / ガス(プロパン) / 排水(浄化槽) / デザイナーズ / 建築確認完了検査済証 |
| 投資金額 | |
| 満室時 | |
| 現状 | |
| 一般備考 | 市街化調整区域ですが既存宅地となりますので、一般の方もご購入可能です。(一部審査あり) |
| PRワード | |
| 物件更新日 | 2026年1月24日 |
-
株式会社木花リアルティ
〒8892153 宮崎市学園木花台南3丁目29-9
電話番号:
0985-77-7553
物件番号 | 2435010002























